Universität Greifswald, Grundsanierung der Domstraße 9a für Historische Wissenschaften
09.08.2017 • Hochschulbau
Fast auf den Tag genau zwei Jahre dauerten die Bauarbeiten auf dem Gelände des Universitätscampus Domstraße in der Greifswalder Innenstadt. Am 30. Juni 2017 erfolgte hier die Übergabe des Historischen Institutes Domstraße 9a an die Hochschule. Verantwortlich für das Bauprojekt war der Geschäftsbereich Hochschul- und Klinikbau des landeseigenen Betriebs für Bau und Liegenschaften Mecklenburg-Vorpommern (BBL M-V).
Zur Historie
Das aus der Kaiserzeit stammende Gebäude Domstraße 9a wurde von 1910 bis 1911 unter Leitung des Landbaudirektors Ernst Lucht errichtet und 1911 als Hörsaal- und Seminargebäude für das Historische Institut eingeweiht.
In den letzten Jahrzehnten verschlechterte sich der Bauzustand infolge unzureichender Bauwerkserhaltungsmaßnahmen zusehends und machte eine grundlegende Sanierung unumgänglich. So waren bereits in den 1960er und 70er Jahren immer wieder Probleme, insbesondere im Bereich der Decken aufgetreten. Bis auf eine ca. 1990/1992 erfolgte Sanierung des Daches und der Erneuerung der Fenster sowie vereinzelte sporadische Maßnahmen zur Instandhaltung und Modernisierung war das Gebäude jahrzehntelang baulich unverändert geblieben.
Nachdem im Jahre 2010 mehrere größere Putzstücke aus verschiedenen Decken herabgefallen waren und die Außenwand deutliche Risse zeigte, wurde das Gebäude untersucht und musste noch im selben Jahr aus Sicherheitsgründen komplett gesperrt werden. Sämtliche Lehrstühle, Fachbibliotheken und Seminarräume des Historischen Institutes mussten auf andere Gebäude verteilt und behelfsweise untergebracht werden. Nach einem etwa fünf Jahre andauerndem Leerstand begann im Juli 2015 die Grundsanierung und ab Mitte Juli 2017 zogen die Historiker nach fast sieben Jahren in ihr Institut zurück, welches ab dem Wintersemester 2017 / 2018 wieder für die Lehre genutzt werden konnte/kann.
Standort - Städtebauliche Situation
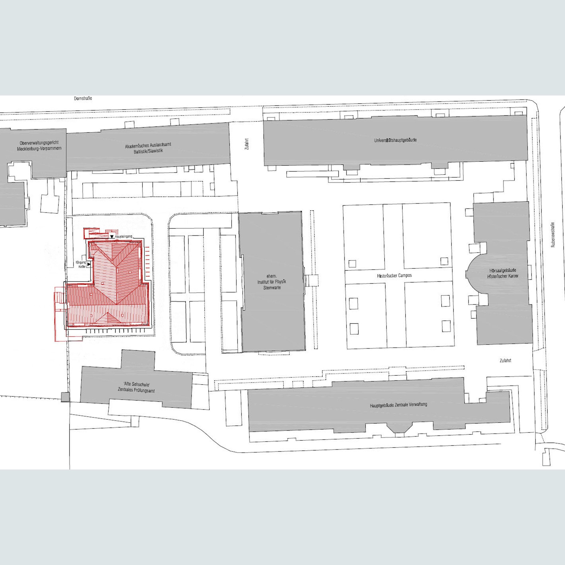
Das Institutsgebäude Domstraße 9a ist Bestandteil des, Ende des 19. Jahrhunderts entstandenen, zentralen historischen Universitätscampus, der sich im Bereich Domstraße / Rubenowstraße innerhalb der Greifswalder Innenstadt befindet. Zusammen mit dem Universitätshauptgebäude, dem Auditorium, dem Physikalischen Institut sowie den seit Ende 2011 durch die Verwaltung der Universität genutzten Gebäuden der ehemaligen Augenklinik ist hier ein in sich geschlossenes Ensemble altehrwürdiger, wertvoller, denkmalgeschützter Bausubstanz zu finden, das sowohl das Stadtbild als auch die Universitätsgeschichte prägend und von enormer Bedeutung ist.
Das Historische Institut bildet den westlichen Abschluss des Universitätscampus, an den sich direkt das Gelände des Gerichtsstandortes mit historischem Oberverwaltungsgericht und Neubau Grundbuchamt anschließt. Bis auf einige kleinere Umbauten im Jahr 1923 und den Anbau für Fahrräder in 1928 ist das Gebäude bis heute strukturell weitgehend unverändert geblieben.
Das Entwurfskonzept - Neue alte Nutzung an historischem Ort
Beim Historischen Institut handelt es sich um ein in traditioneller Bauweise errichtetes Gebäude mit L-förmigem Grundriss. Es ist voll unterkellert, besitzt drei Vollgeschosse (Erdgeschoss, erstes und zweites Obergeschoss) sowie ein ausgebautes Dachgeschoss als Mansarddach.
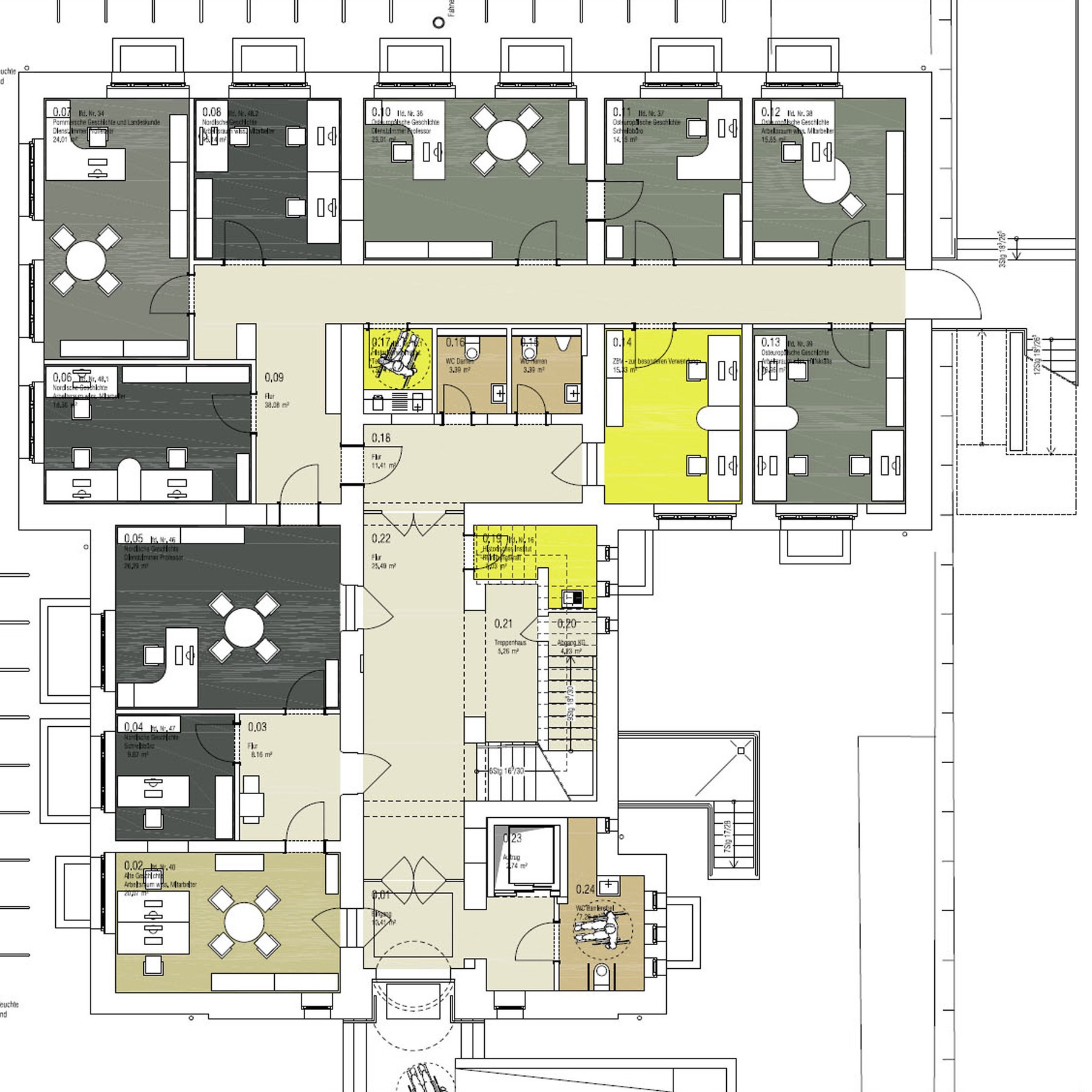
Das denkmalgeschützte Gebäude sollte nach seiner Grundsanierung wieder seiner bisherigen Nutzung zugeführt werden. Auf einer Nutzfläche von ca. 885 m² wurden Räume für insgesamt 51 Mitarbeitende und 231 Studierende geschaffen bzw. wiederhergerichtet.
Dazu gehören z. B. Räume für die Zentrale Lehre (zwei bereits bestehende Hörsäle mit 80 bzw. 49 Sitzplätzen), drei Seminarräume (102 Plätze), Räume für den Bereich Historische Inschriften, Büroräume für acht verschiedene hier zusammengeführte Fachbereiche / Lehrstühle (Allgemeine Geschichte / Nordische, Osteuropäische, Hanse-, Pommersche, Ur- und Frühgeschichte, Alte Geschichte, Fachdidaktik Geschichte) sowie Lehrerzimmer, Räume für Lehrmittel und Karten, Teeküchen und Kopierräume.
Jedes Geschoss verfügt jetzt über erforderliche Sanitäreinrichtungen und bildet zusammen mit den Büros und Teeküchen eine für sich abgeschlossene Einheit.
Die Kubatur des Bestandsgebäudes blieb erhalten. Entsprechend dem neuen Raumbedarf erfolgte eine neue Aufteilung einzelner Räume in den Geschossen.
Aus brandschutztechnischen Gründen wurde ein zweiter notwendiger Rettungsweg in Form einer Außentreppe am Westgiebel errichtet. Die Flure in allen Geschossen wurden entsprechend angepasst. Durch den Einbau eines Aufzuges und die Errichtung einer Rampe im Außenbereich konnte den Anforderungen an die Barrierefreiheit Rechnung getragen werden.
Baumaßnahme - konstruktive und bautechnische Besonderheiten
Die Grundsanierung des Historischen Institutes erstreckte sich auf die komplette Baukonstruktion. Beinahe alle Bauteile mussten, in Abhängigkeit vom Erhaltungszustand, teilweise oder komplett saniert, restauriert, angepasst, ergänzt oder erneuert werden.
Dabei wurden neben der denkmalpflegerischen Zielstellung insbesondere auch die barrierefreie Erschließung, notwendige Maßnahmen zum baulichen Brandschutz sowie baurechtliche Belange berücksichtigt.
Um das Gebäude überhaupt wieder zugänglich und nutzbar zu machen, mussten zunächst 60 Prozent der Decken komplett erneuert werden. Der Einbau neuer Ziegeleinhangdecken erfolgte in fünf Bauabschnitten.
Neben der Wiederherstellung der Deckentragfähigkeit wurden u. a. folgende weitere Maßnahmen durchgeführt:
- Kellertrockenlegung inklusive Sanierung des Klinkersockels, Grundwasserabsenkungen bei Bedarf aufgrund erforderlicher Fundamentunterfangungen
- Neuaufteilung einzelner Räume und Flure durch Einzug neuer bzw. Abbruch vorhandener Zwischenwände, Herstellung erforderlicher neuer Türdurchbrüche sowie Schließung nicht mehr benötigter Öffnungen
- Einbau neuer Sanitärräume und Teeküchen in allen Geschossen
- Einbau eines Aufzugs sowie Anbau einer Rampe außen zur Gewährleistung der Barrierefreiheit
- Schaffung eines zweiten notwendigen Rettungsweges durch Anbau Treppenturm an der Westfassade
- Sanierung / Erneuerung Wand- und Deckenputz sowohl außen als auch innen
- Stellenweise Erneuerung der Dachkonstruktion inkl. kompletter Holzschutz, Erneuerung Dacheindeckung einschließlich Lattung sowie sämtlicher Blechverkleidungen im Bereich Ziergiebel, Gesimse etc.
- Wärmeschutzmaßnahmen, soweit der Denkmalschutz dies erlaubte (z. B. Dämmung der Kellerdecke von unten, Zwischensparrendämmung im Bereich der Mansarden)
- Erneuerung nicht erhaltenswerter Bodenbeläge, Restaurierung denkmalgeschützter Beläge
- Denkmalgerechte Sanierung, Aufarbeitung und Anpassung der Außentür sowie aller Innentüren, Fenster und Innenfenster
- Erneuerung der kompletten Technischen Gebäudeausrüstung
- Einbau von Bauteilen zur Gewährleistung der Akustik in Hörsälen, Seminarräumen und nach Bedarf in einigen Büros u.a. Räumen
- Einbau neuer Hörsaalbestuhlung im großen Hörsaal, Restaurierung der historischen Bestuhlung im kleinen Hörsaal, Ausstattung mit moderner Hörsaaltechnik, zeitgemäßen Einbauten und elektrischen Verdunklungsanlagen
Denkmalschutz
Eine besondere Herausforderung bei der Grundsanierung stellte die Umsetzung der denkmalpflegerischen Konzeption dar, die dem Gebäude und seinen Räumen trotz vorgenommener Änderungen in der bestehenden Raumstruktur seinen ursprünglichen Reiz bewahrten bzw. wieder zum Vorschein brachten.
Das Äußere des im schlichten Jugendstil errichteten Gebäudes blieb weitgehend im Original erhalten. Im Inneren wurde die ursprüngliche Farbfassung nach den Befunden der Restauratoren wiederhergestellt. Das gesamte Gebäude wirkt nach dem Umbau nun wieder sehr hell und einladend.
Zum erhaltenen historischen Bestand gehören neben vielen alten Türen z. B. auch die historischen Fußbodenkacheln im Eingangsbereich, die Vertäfelungen der Wände und Pfeiler aus dunklem Holz sowie das schmiedeeiserne Geländer in den Fluren bzw. im Treppenhaus. Alles musste schadfrei demontiert, denkmalgerecht aufgearbeitet und nach Abschluss der Sanierungsarbeiten wieder montiert bzw. eingebaut werden.
Die über dem Treppenhaus vorhandene, historisch wertvolle Deckenmalerei wurde detailgetreu restauriert und bildet einen überraschenden Blickfang. Das über siebzig Jahre alte Hörsaalgestühl des kleinen Auditoriums konnte aufgearbeitet werden und lässt zukünftig auch hier, trotz moderner Einbauten und Hörsaaltechnik, Studenten und Lehrkräfte noch ein wenig vom historischen Charme der Entstehungszeit spüren.
Neues setzt sich konsequent und erkennbar vom Alten ab, sowohl innen wie außen, sowohl im kleinen Detail wie auch im Großformat - beispielhaft erkennbar beim neu angebauten Treppenturm an der historischen Westfassade.
Die wichtigsten Eckdaten - Grundsanierung Historisches Institut Domstr. 9a
| 09.2010 | Vollsperrung des Gebäudes wegen akuter Einsturzgefahr der Geschossdecken |
|---|---|
| 09.2010 - 05.2013 | Erstellung der EW-Bau |
| 04.2014 | Genehmigung der EW-Bau |
| 10.2014 - 03.2015 | Aufstellung AFU-Planung einschl. 60 % LV |
| 07.2015 | Baubeginn |
| 06.2017 | Bauende |
| 07.2017 | Übergabe an den Nutzer |
Stand: 04. August 2017
Planungsdaten - Grundsanierung Historisches Institut Domstr. 9a
| Bauherr | Land Mecklenburg-Vorpommern, vertreten durch den BBL M-V, Geschäftsbereich Hochschul- und Klinikbau |
|---|---|
| Gesamtbaukosten | ca. 4,5 Mio. Euro |
| davon Baukosten | ca. 3,6 Mio. Euro |
| davon Honorare | ca. 0,9 Mio. Euro |
| Nutzfläche | ca. 885 m² (NUF 1-6) |
| Nettogrundfläche | ca. 2.021 m² |
| Bruttorauminhalt | ca. 9.420 m³ |
| Hörsäle (Plätze) | 2 (80 + 49 Plätze) |
| Seminarräume (Plätze) | 3 (102 Plätze) |
| beauftragte Architekten | Dipl.-Ing. Architekt BDA Achim Dreischmeier, Koserow (bis LPH 4 - EW-Bau) |
| STADT + HAUS Architekten und Ingenieure GmbH, Wismar (ab LPH 5) |
|
| Tragwerksplanung | ISB Kirsch Ingenieurbüro für Statik & Bauphysik, Greifswald |
| Haustechnik | DDP Planungsbüro für Gebäudetechnik GmbH, Zinnowitz |
| Restaurator | Hans-Henning Bär, Sundhagen (Horst) |
Die Planungsleistungen wurden ausschließlich durch Büros aus Mecklenburg-Vorpommern erbracht.
Insgesamt wurden 34 Bauaufträge national ausgeschrieben und erteilt, davon 27 an Unternehmen aus Mecklenburg-Vorpommern.
Standort des Historischen Institutes auf dem Universitätscampus Domstraße
Das Historische Institut bildet den westlichen Abschluss des zentralen historischen Universitätscampus Domstraße / Rubenowstraße.
