Theater erhält einen neuen Vorplatz
07.08.2017 • Landestheater Neustrelitz
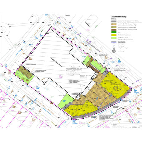
Das Theater befindet sich auf der landeseigenen Liegenschaft in unmittelbarer Nachbarschaft zum Schlossgarten, Orangerie und des historischen Marstalls im Stadtzentrum von Neustrelitz.
Der Betrieb für Bau und Liegenschaften, Geschäftsbereich Neubrandenburg führt hier seit 2012 eine große Baumaßnahme durch.
Das Gebäude einschließlich der Außentreppe wurde im Rahmen der Ausführung von substanzerhaltenden Maßnahmen und Brandschutz hergerichtet. Der Theatervorplatz einschließlich Zuwegungen befand sich noch in einem unsanierten Zustand. Seit Juli dieses Jahrs wird der Theatervorplatz für 240.000 Euro Baukosten neu hergerichtet.
Die Baumaßnahme zur Erneuerung des Theatervorplatzes umfasst neben den Bereichen des Vorplatzes die seitlichen Treppenanlagen und Anschlussflächen bis zu den angrenzenden Gehwegen.
Die Realisierung der Maßnahmen erfolgt in vier Bauabschnitten (BA):
Die Realisierung der Maßnahmen erfolgt in vier Bauabschnitten (BA):
- Sanierung des südwestlichen Gebäudeteils
- Sanierung des nordwestlichen Gebäudeteils mit 4. BA Teilsanierung Fassade
- Sanierung des südöstlich Gebäudeteils mit 4. BA Teilsanierung Fassade
Der Theaterkomplex steht unter Denkmalschutz und weist eine besondere stadtbildprägende Bedeutung für Neustrelitz auf. Das Theater wurde 1926 bis 1928 nach Plänen des Architekten Max Littmann errichtet, brannte 1945 nieder und wurde 1954 wiederaufgebaut. Im Rahmen des Wiederaufbaus wurde das äußere Erscheinungsbild des Theaters wesentlich verändert. Eine weitere baulich Veränderung erfolgte 1980. Der Theatervorplatz unterlag im Laufe der Zeit ebenso unterschiedlichen Bauepochen und es fanden im Rahmen von Umgestaltungen mehrmals Veränderungen und Überformungen statt.
Die Herrichtung des Theatervorplatzes erfolgt in Abstimmung mit dem Landesamt für Kultur und Denkmalpflege nach dem Vorbild aus der Epoche zwischen 1928 bis 1956.
Die aus den 1980er Jahren stammenden Umfassungsmauern werden zurückgebaut und die Pflasterflächen auf die ursprüngliche Größe verkleinert. Die neue Grundform des Platzes orientiert sich an der geradlinigen Linienführung der Platzgestaltung nach 1954 und seine zurückhaltende Gestaltung ordnet sich der natürlichen Topografie zukünftig wie selbstverständlich unter.
Der Theatervorplatz wird zur Hertelstraße wieder geöffnet. Die seitlichen Platzränder führen vom Gehweg vor dem Haupteingang zu den seitlichen Gehwegen. Der Höhenunterschied im Gelände wird hier in der Wegführung durch Treppenanlagen überbrückt. Der Verlauf der Treppenanlage zur Friedrich-Ludwig-Jahn-Straße wird ebenfalls wieder direkt an das Gebäude zum vorhandenen Gehweg verlegt.
Die Bepflanzung erfolgt mit immergrünen, das Laub schluckenden Bodendeckern und Solitärgehölzen. Die geplante Pflasterfläche wird in Flucht der Außentreppe mit diagonal verlegten Plattenbelag ausgeführt. Dieser Plattenbelag findet sich im gesamten Stadtbild wieder und wurde für die Liegenschaft übernommen. Neue, einheitlich gestaltete Ausstattungselemente wie Sitzbänke und Abfallbehälter neben den monolithisch aussehenden Schaukästen runden das Ensemble ab und ergänzen die neue Gestaltung des Theatervorplatzes.
Zum 10. September 2017, dem Tag der offenen Tür am Theater, soll der Theatervorplatz wieder begehbar sein.
Der Theatervorplatz wird zur Hertelstraße wieder geöffnet. Die seitlichen Platzränder führen vom Gehweg vor dem Haupteingang zu den seitlichen Gehwegen. Der Höhenunterschied im Gelände wird hier in der Wegführung durch Treppenanlagen überbrückt. Der Verlauf der Treppenanlage zur Friedrich-Ludwig-Jahn-Straße wird ebenfalls wieder direkt an das Gebäude zum vorhandenen Gehweg verlegt.
Die Bepflanzung erfolgt mit immergrünen, das Laub schluckenden Bodendeckern und Solitärgehölzen. Die geplante Pflasterfläche wird in Flucht der Außentreppe mit diagonal verlegten Plattenbelag ausgeführt. Dieser Plattenbelag findet sich im gesamten Stadtbild wieder und wurde für die Liegenschaft übernommen. Neue, einheitlich gestaltete Ausstattungselemente wie Sitzbänke und Abfallbehälter neben den monolithisch aussehenden Schaukästen runden das Ensemble ab und ergänzen die neue Gestaltung des Theatervorplatzes.
Zum 10. September 2017, dem Tag der offenen Tür am Theater, soll der Theatervorplatz wieder begehbar sein.
Lageplan Theater Neustrelitz
17235 Neustrelitz, Friedrich-Ludwig-Jahn-Straße 14