Universitätsmedizin Greifswald, Neubau Notaufnahme und Pflegestation für Innere Medizin
31.07.2019 • Klinikbau
Für die Medizinische Fakultät der Universität Greifswald entstand von September 2015 bis Dezember 2018 östlich des ersten Bauabschnittes des Klinikums ein Neubau für die Notaufnahme und Pflegestation der Klinik für Innere Medizin. Verantwortlich für das Bauprojekt war der Geschäftsbereich Hochschul- und Klinikbau des landeseigenen Betriebs für Bau und Liegenschaften Mecklenburg-Vorpommern (BBL M-V).
Bisherige Entwicklung - Anlass der Baumaßnahme
Die bestehende Notaufnahme, die Bestandteil des ersten Bauabschnittes des Klinikums der Universitätsmedizin Greifswald (UMG) ist, ging mit dessen Fertigstellung im Dezember 2003 in Betrieb. Infolge der demographischen Entwicklung und des hohen Altersdurchschnitts der Patienten in der Region, zusätzlich verstärkt durch das Zurückziehen der niedergelassenen Ärzte aus der Notfallbehandlung, kam bzw. kommt es in der UMG zu einer kontinuierlichen Steigerung der Fallzahlen von über elf Prozent pro Kalenderjahr.
Die Kapazität der bestehenden Notaufnahme in der UMG war daher erschöpft. Die räumliche Enge im derzeitigen Standort des Zentrums der Inneren Medizin führte zu Versorgungsengpässen bei Allgemeinchirurgischen Notfällen. Um dem steigenden Bedarf an Notfallbehandlungen durch die UMG auch weiterhin gerecht werden zu können wurde die Errichtung des Neubaus veranlasst.
Standort - Städtebauliches Konzept
Die dreigeschossige Erweiterung entstand auf der baulichen Entwicklungsfläche der UMG, unmittelbar südöstlich des ersten Bauabschnittes, auf der dort vorhandenen freien Fläche. Das Gebäude liegt in konsequenter Verlängerung der bis dahin vorhandenen Notaufnahme und schließt über ein eingeschossiges Verbindungsbauwerk direkt an den zweigeschossigen Bestand an.
Die ursprünglich vorhandenen Zugänge und Personenströme werden aufgenommen und weitergeführt. Die Auffahrt für die Krankentransporte ist der bestehenden Straßenzufahrt und dem Landeplatz des Rettungshubschraubers zugeordnet. Der Zugang für gehfähige Patienten und Besucher befindet sich auf der gegenüberliegenden, dem Besucherparkplatz zugewandten Gebäudeseite.
Bauwerksgeometrie
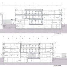
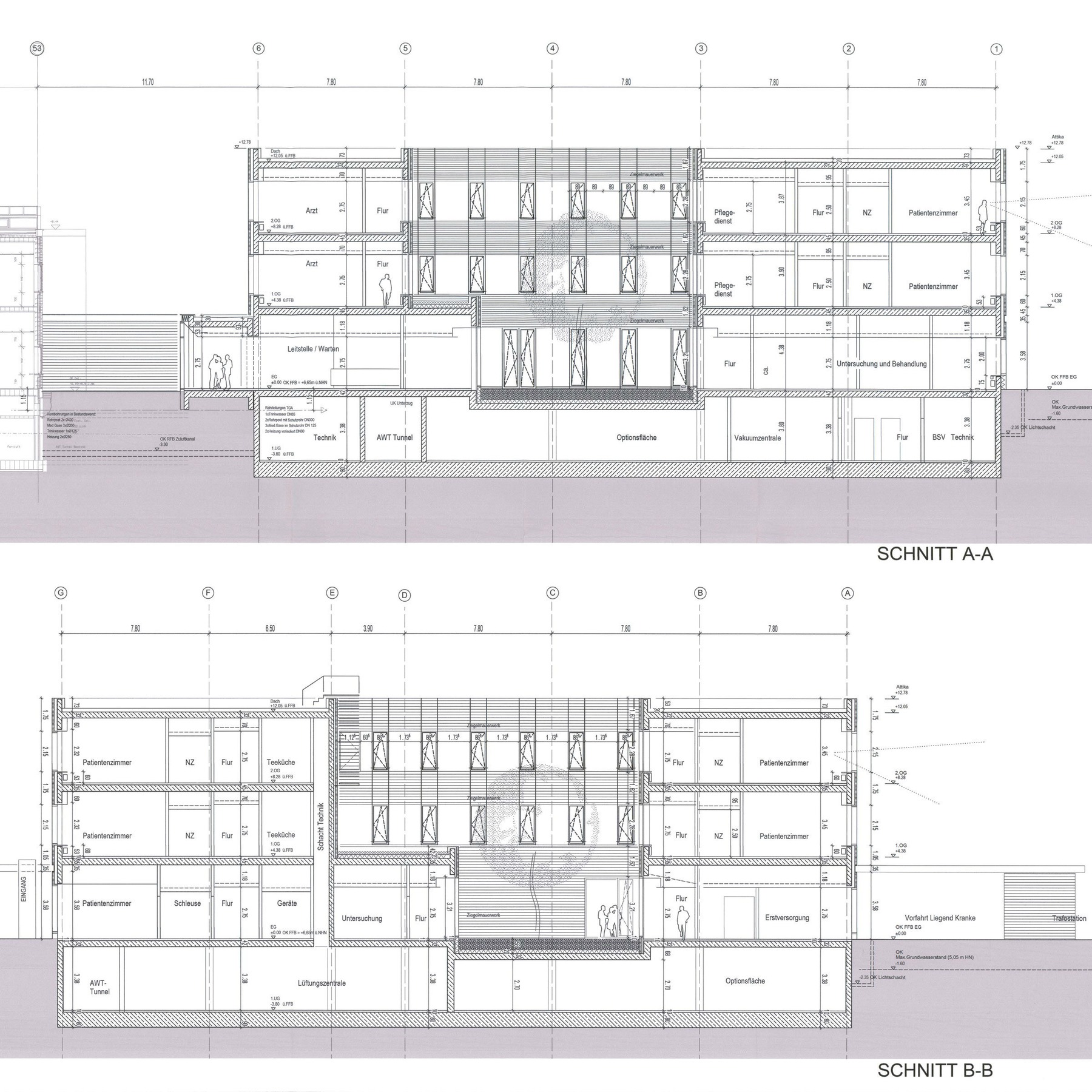
Es handelt sich um einen dreigeschossigen kubischen Baukörper mit annähernd quadratischer Grundfläche. Die Gebäudeabmessungen über der Oberfläche betragen Länge x Breite x Höhe = 42,5 m x 40,05 m x 12,78 m. Die Abmessungen des eingeschossigen Verbinders betragen Länge x Breite x Höhe = 29,7 m x 10,93 m x 3,88 m. Die Krankenwagenvorfahrt sowie der Zugang für gehfähige Patienten sind mit Überdachungen ausgestattet, wodurch diese Eingangssituationen ihre besondere Betonung erfahren. Das Gebäude ist voll unterkellert. Der Verbinder ist teilunterkellert.
Die konstruktiven und bautechnischen Besonderheiten
Vor Beginn der eigentlichen Bauarbeiten waren umfangreiche Maßnahmen zur Freimachung des Baufeldes erforderlich. Eine Trafostation im Baubereich musste zunächst durch eine neue Trafostation ersetzt werden, bevor die alte abgebrochen werden konnte. Ebenso war ein umfangreicher Bestand an Leitungen aller Medien aus dem Baubereich zu entfernen, zu verlegen bzw. zu erneuern. Ein vorhandenes Pumpwerk musste verlegt werden, ein vorhandener Tunnel für den automatischen Warentransport (AWT) wurde abgebrochen und im Bereich des Untergeschosses erneuert.
Die besondere Schwierigkeit bestand darin, dass sämtliche Bauarbeiten so erfolgen mussten, dass der laufende Krankenhausbetrieb zu keinem Zeitpunkt behindert wurde. Störeinflüsse, z. B. durch Lärm, Staub, Erschütterungen etc., sowohl für Patienten, als auch für Mitarbeitende des Klinikums waren möglichst zu vermeiden bzw. so gering wie möglich zu halten. Hierfür sorgten zusätzliche Aufwendungen, wie z. B. Unterfangungen, Abstützungen und das Aufstellen von Staubschutzwänden.
Baukonstruktion
Der Neubau wurde aus Stahlbeton errichtet - Außenwandscheiben, tragende Innenwände und Stützen bilden die wesentliche statische Konstruktion. Die Gründung erfolgte durch eine 80 cm starke und gedämmte Stahlbetonplatte. Das Untergeschoss ist wasserundurchlässig und dampfdicht ausgeführt als sogenannte "weiße Wanne". Die Decken des Neubaus wurden als unterzugsfreie Stahlbetondecken hergestellt. In Kombination mit Unterdecken kann so die erforderliche medizinische Versorgungsdichte abgesichert werden.
Das Stahlbetonflachdach ist als Warmdach ausgebildet. Verkleidete Stahlkonstruktion bzw. Stahlbetonkonstruktionen als Vordächer im Eingangsbereich sowie im Bereich der Auffahrt für die Krankentransporte sorgen für einen ausreichenden Wetterschutz.
Für die Fassadenbekleidung wurde Ziegelmauerwerk mit dahinterliegender Kerndämmung vorgesehen, für alle Fenster und Fensterbänder kamen Verbundfenster mit Isolierverglasung zum Einsatz, zum Teil in Schallschutzklasse 4. Elektrisch betriebene Jalousien im Scheibenzwischenraum übernehmen die Funktion des außenliegenden Sonnenschutzes und sorgen außerdem für ausreichenden Sicht- und Blendschutz. Die Verglasungen zum Innenhof und an den Übergängen zum Bestand wurden überwiegend als Pfosten-Riegel-Konstruktion mit blickdichten Paneelen im Brüstungs-, Geschossdecken- und Attikabereich errichtet.
Das Entwurfskonzept
"Unser Gestaltungskonzept steht im Dialog zu der bestehenden Gebäudestruktur", so der vom BBL M-V beauftragte Architekt Stefan Ludes. "Die helle und vertrauensvolle Atmosphäre sowie die klare Gliederung der Räumlichkeiten werden die Notaufnahme der Universität Greifswald zu einem Ort machen, an dem Patienten sich aufgehoben fühlen und Ärzte optimal agieren können.
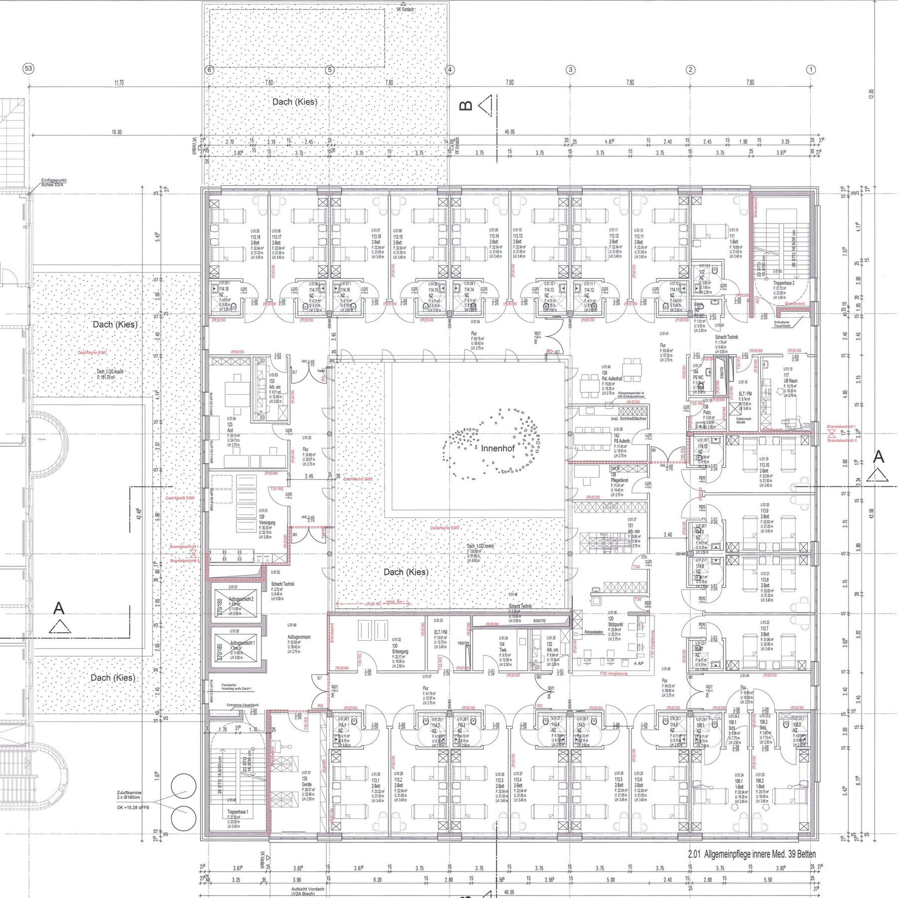
Mit dem Neubau der Notaufnahme wurden die Bereiche der chirurgischen und internistischen Notaufnahme neu geordnet sowie Erweiterungsflächen für die Klinik für Innere Medizin realisiert. Der Entwurf sah im Erdgeschoss die Schaffung einer interdisziplinären Notaufnahme mit klarer Trennung der Wege von liegenden und gehfähigen Notfallpatienten vor, an die eine kleine IMC-Station mit zehn Betten angegliedert ist. Neben einer zentral gelegenen gemeinsamen Leitstelle, die den Gebäudeeingängen direkt zugeordnet ist, befinden sich hier Wartezonen für Patienten, Räume für Patientenaufnahme, Blutentnahme, Endoskopie, Sonografie, Erstversorgung mit sechs Behandlungsplätzen, Untersuchungs- und Behandlungsräume der jeweiligen Fachärzte, Schockraum, Räume für Ärzte sowie erforderliche Personal-, Sozial-, Lager-, Ver- und Entsorgungs- und Technikräume. In den beiden Obergeschossen sind differierende Patientenpflegestationen der Klinik für Innere Medizin mit jeweils 39 Betten pro Etage vorgesehen. Je ein zentral gelegener Stützpunkt, Raum für Ärzte, Untersuchungs- und Behandlungsraum, Raum für Pflegedienst sowie ebenfalls die erforderlichen Personal-, Sozial-, Lager-, Ver- und Entsorgungs- und Technikräume komplettieren diese beiden, absolut baugleichen Obergeschosse. Ein zentral gelegener Innenhof erstreckt sich über alle Geschosse, macht Blickbeziehungen sowie die natürliche Belichtung, Be- und Entlüftung und Entrauchung der innenliegenden Flure und Räume möglich. Über einen eingeschossigen, überwiegend verglasten, neuen Verbindungsbau zwischen Neubau und Bestandsgebäude wird im Erdgeschoss die direkte Verbindung und Erreichbarkeit beider Gebäude hergestellt. Auch hier ermöglicht ein Innenhof die Versorgung der angrenzenden Räume mit Tageslicht, Frischluft und schafft Blickbeziehungen zwischen Neubau und Bestand. Für die vertikale Erschließung wurden eine aus zwei Bettenaufzügen bestehende Aufzugsgruppe sowie zwei, jeweils an den Gebäudeecken positionierte, abgeschlossene Treppenhäuser vorgesehen. Das Kellergeschoss nimmt die Technikzentrale, die AWT-Trasse sowie zusätzliche Optionsflächen auf.
Gebäudetechnik
Die medientechnische Versorgung (Heizung, Elektro etc.) des Gebäudes erfolgt über die Infrastruktur der Universitätsmedizin Greifswald.
Zur technischen Ausstattung des Gebäudes gehören neben der normalen Gebäudetechnik zusätzliche Besonderheiten, deren Erfordernis sich aus der medizinischen Nutzung ergibt:
So erfolgt die Ver- und Entsorgung der Notaufnahme und der Stationen mittels eigenständig operierender Wagen AWT, das bereits im gesamten Klinikum genutzt und für den Neubau angepasst und erweitert wurde. Für den Transport von Blutproben und Befunden steht eine Rohrpostanlage zur Verfügung, für die Versorgung mit medizinischen Gasen eine spezielle Anlage für die Versorgung dieser Medien.
Raumlufttechnische Anlagen für die Betten-, Behandlungs- und Isolierzimmer sowie auch für Chemikalienschränke, Gasflaschenschränke, sanitäre Anlagen und Technikzentrale wurden den hier geltenden speziellen Anforderungen angepasst. Isolierzimmer wurden mit Druckkaskade Flur, Schleuse, Bettenzimmer realisiert, die Abluft erfolgt über spezielle Filter. Bettenzimmer sind teilklimatisiert, Isolierzimmer vollklimatisiert.
Zutrittskontroll- und Patientenrufsystem stehen zur Verfügung.
Kälteanlagen, Brandmelde- und Feuerlöschanlage, Medizin- und Labortechnische Anlagen, Aufzugsanlagen sowie eine Anlage zum Befahren der Fassaden für die Fensterreinigung gehören ebenfalls zur technischen Ausstattung des Neubaus.
Kälteanlagen, Brandmelde- und Feuerlöschanlage, Medizin- und Labortechnische Anlagen, Aufzugsanlagen sowie eine Anlage zum Befahren der Fassaden für die Fensterreinigung gehören ebenfalls zur technischen Ausstattung des Neubaus.
Die gesamte Anlagentechnik ist auf die vorhandene zentrale Gebäudeleittechnik des Klinikums aufgeschaltet und kann somit zentral überwacht werden.
Die Unterbringung sämtlicher technischer Anlagen sowie der erforderlichen Hausanschlussräume erfolgte in der Technikzentrale im Kellergeschoss. Die Verteilung der Medien erfolgt vertikal über zentrale Technikschächte und horizontal geschossweise im Bereich der abgehängten Decken.
Die äußere Gestaltung
Für die tragenden Außenwände wurde eine Fassadenbekleidung in Ziegel-Verblendmauerwerk vorgesehen. In den Obergeschossen kam entsprechend den Vorgaben des städtebaulichen Rahmenplanes für den Gesamtcampus ein gelber Klinker zur Anwendung. Damit fügt sich der Neubau harmonisch an den Gebäudebestand an. Das Erdgeschoss setzt sich durch die Verwendung dunkler, anthrazitfarbener Klinker deutlich ab und erhält so eine besondere Betonung als massiver Sockel. Die Fassade ist zwischen dem Erdgeschoss und dem ersten Obergeschoss zusätzlich durch ein durchlaufendes Stahlband gegliedert.
In den Obergeschossen finden sich die dunklen Klinkerflächen zwischen den Fenstern wieder und sorgen hier für eine entsprechende Gliederung und Auflockerung der Fensterbänder.
Die beiden Hauptzugänge auf der Nordostseite und der Südwestseite sind mit Überdachungen ausgestattet, wodurch diese Eingangssituationen ihre besondere Betonung erfahren und schon von Weitem erkennbar sind.
Kunst am Bau
"SÄULE AUF SÄULE AUF SÄULE" so lautet der Titel der durch die Leipziger Künstler Lutz-Rainer Müller und Stian Ådlandsvik errichteten Skulptur, welche rechts neben der Zufahrt ca. zehn Meter in die Höhe ragt. Aus einem im Jahr 2017 bundesweit ausgelobten Kunst am Bau-Wettbewerb war diese Idee als Siegerentwurf hervorgegangen und durch die Jury zur Ausführung empfohlen worden.
Drei verschiedene übereinander gestellte Säulen sind durch ihre Höhe von weitem sichtbar und bieten Orientierung für Besucher. Zwei der drei Säulen sind Originale aus historischen Beständen, die mittlere Säule besteht aus den Fassadensteinen des Neubaus und nimmt so Bezug zur Architektur der Notaufnahme.
Die wichtigsten Eckdaten
| 07.2012 | Planungsauftrag zur Erstellung einer Entwurfsunterlage (EW-Bau) |
|---|---|
| 02.2014 | Genehmigung Teil-EW-Bau "Baufeldfreimachung" als Vorabmaßnahme |
| 10.2014 | Genehmigung Gesamt-EW-Bau |
| 02.2015 | Baubeginn Baufeldfreimachung |
| 09.2015 | Baubeginn Gebäude Neubau Notaufnahme |
| 15.12.2016 | Fertigstellung Rohbau - Richtfest |
| 12.2018 | Fertigstellung und Übergabe an den Nutzer |
Stand: Dezember 2018
Planungsdaten - Neubau Notaufnahme und Pflegestation für Innere Medizin der Universitätsmedizin Greifswald
| Bauherr | Land Mecklenburg-Vorpommern, vertreten durch den BBL M-V, Geschäftsbereich Hochschul- und Klinikbau |
|---|---|
| Gesamtbaukosten | 22,7 Millionen Euro |
| davon Baukosten | 19 Millionen Euro |
| davon Honorarkosten | 3,7 Millionen Euro |
| Nutzungsfläche | 3.060 m² |
| Raumfläche (netto) | 5.800 m² |
| Grundfläche (brutto) | 6.430 m² |
| Bruttorauminhalt | 27.870 m³ |
| Architekt | LUDES Generalplaner GmbH, Berlin |
| Haustechnik | GTB Berlin mbH, Berlin |
| Tragwerksplanung | R & P RUFFERT Ingenieurgesellschaft mbH, Berlin |
| Prüfen Tragwerksplanung | Dipl.-Ingenieur Detlef Schüler, Neubrandenburg |
| Ingenieur-Bauwerke / Verkehrsanlagen | Ingenieurbüro Küchler GmbH, Stralsund |
| Außenanlagen | Landschaftsarchitekturbüro Petters, Stralsund |
Stand: November 2022
Die Bauleistungen wurden zu ca. 70 Prozent von Firmen aus Mecklenburg-Vorpommern ausgeführt.
Lageplan Universitätsmedizin Greifswald, Standort Neubau Notaufnahme
17489 Greifswald, Ferdinand-Sauerbruch-Straße