Zum Hauptinhalt springen
Logo des Europäischen Fonds für Regionale Entwicklung
Logo des Europäischen Fonds für Regionale Entwicklung
Blick in den geschlossenen Innenhof: links das Bestandsgebäude FC III, rechts der Neubau FC IIIa © 2022 SBL Greifswald

Laborgebäude vollendet

09.11.2022 | Fertigstellung

Laborgebäude vollendet

09.11.2022 | Fertigstellung

Universitätsmedizin Greifswald, Neubau Forschungscluster IIIa

09.11.2022 • EFRE im SBL Greifswald
Das Land Mecklenburg-Vorpommern investiert mit Unterstützung der Europäischen Union weiter in die bauliche Entwicklung der Universitätsmedizin Greifswald. Es entstand das Forschungscluster (FC) IIIa - ein Laborgebäude für moderne biomedizinische Forschung. Verantwortlich für das 15,5 Millionen Euro umfassende Bauprojekt war das Staatliche Bau- und Liegenschaftsamt (SBL) Greifswald.

Städtebauliche Situation - Einfügen in den Bestand

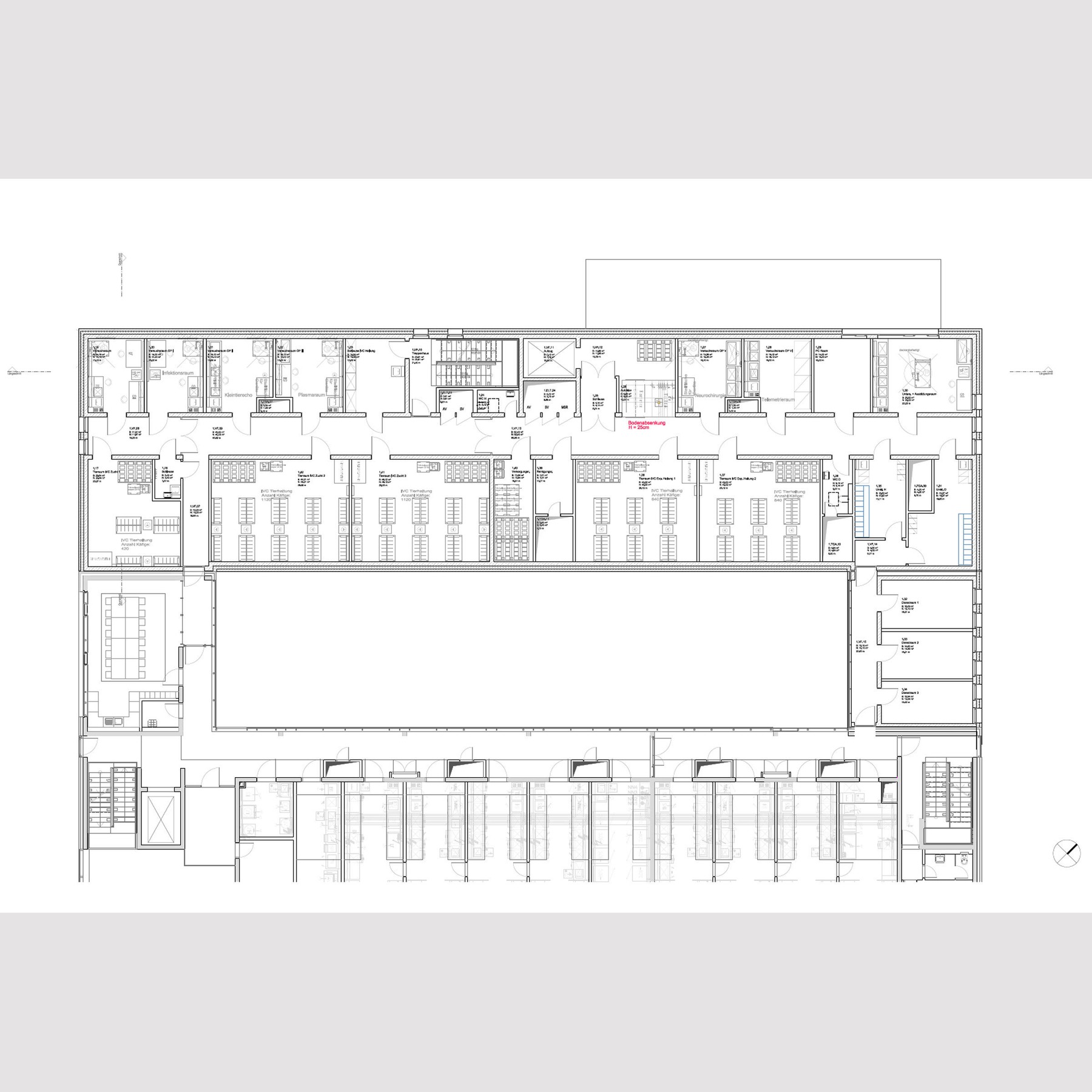
Der ca. 53 m x 14 m x 13 m (L x B x H) große Neubau des Forschungsclusters IIIa entstand auf dem Baufeld zwischen dem Forschungscluster III, welches im Jahr 2012 fertiggestellt wurde, und dem Gebäude der ehemaligen Urologischen Klinik. Durch den direkten Anbau des orthogonalen Baukörpers an das U-förmige Bestandsgebäude Forschungscluster III wird dieses vollendet und der zwischen beiden Gebäuden entstehende Innenhof wurde geschlossen. Den Hauptzugang in das neue Laborgebäude bildet das Bestandsgebäude Forschungscluster III. Der Neubau hält sich gestalterisch zurück und fügt sich gemeinsam mit dem Bestand zu einem Gesamtbaukörper. Stellplatzanlagen für Fahrräder sowie behindertengerechte Stellplätze für PKW sind direkt am Bestandsgebäude vorhanden, sonstige PKW Stellplätze befinden sich auf den Parkplätzen in unmittelbarer Nähe.

Hochbauliches Konzept

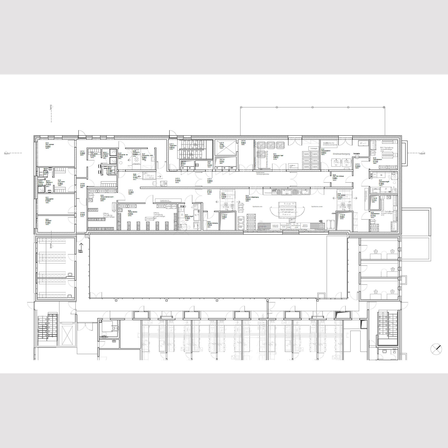
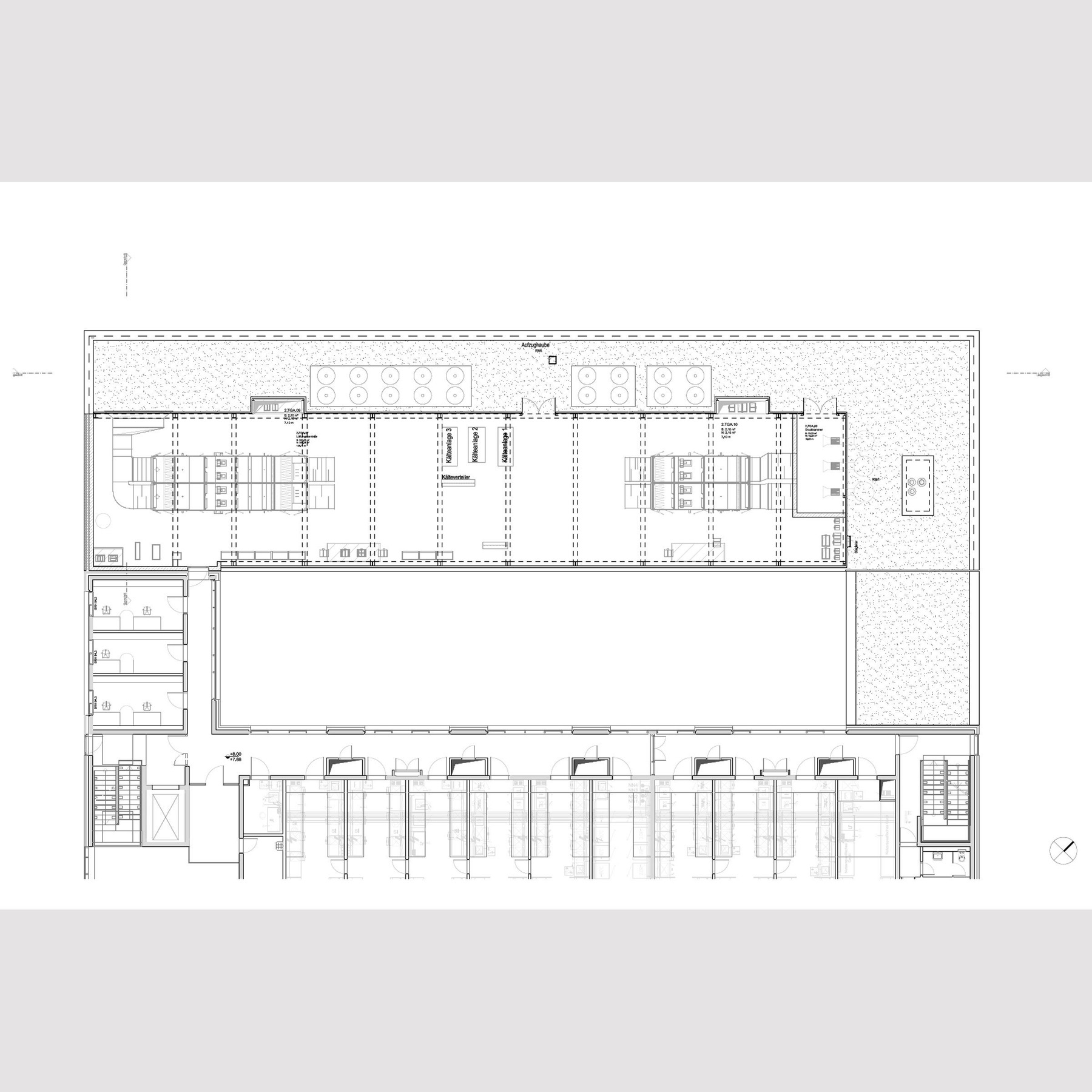
Der Baukörper ist ein Abbild seiner inneren Struktur und Funktionalität. Diese sind bestimmt durch eine typologische, funktionale und technische Zonierung. Das Gebäude ist als zweigeschossiges Gebäude mit einer Technikzentrale auf dem Dach entstanden, die als Staffelgeschoss ausgebildet wurde.  Um Kompaktheit zu erreichen, wurde ein Teil der Technikzentralen im Untergeschoss angeordnet. Der Neubau ist teilweise unterkellert und schließt an die Unterkellerung des Bestandes an. Im Untergeschoss sind die Heizzentrale, die Notstromversorgung, Dampferzeugung sowie Räumlichkeiten zur Lagerung von Materialien und Geräten angeordnet. Um größere technische Geräten in das Untergeschoss bringen zu können, wurde die bereits vorhandene Öffnung erweitert.
Der Personalfluss für alle Bereiche zwischen dem Bestandsgebäude und dem Neubau erfolgt im Erdgeschoss. Im Obergeschoss können sich die Wissenschaftler vom Bestandsgebäude in die Labore des Neubaus einschleusen. Zur vertikalen Erschließung ist der Neubau mit nur einem Treppenhaus ausgestattet. Für die notwendigen Rettungswege wird der Bestand mitgenutzt. Das Treppenhaus des Neubaus ist hochbaulich optimiert und wurde nicht über das Dach geführt, da die Technikzentrale über die vorhandene Öffnung im 2. Obergeschoss des Bestandsbauwerks erschlossen wird. Ein zweiter Rettungsweg aus der Technikzentrale auf die Dachfläche ist vorhanden - dort kann die Feuerwehr im Notfall eine Rettungsleiter anlegen. Das Untergeschoss bietet die Möglichkeit, die Technikflure beider Gebäudeteile zu betreten.

Laborgebäude - Funktionale Zusammenhänge - Nutzung

Der Neubau Forschungscluster IIIa dient, in Verbindung mit dem Bestandsgebäude Forschungscluster III, der interdisziplinären Nutzung durch verschiedene Forschungsgruppen der Universitätsmedizin, so z.B. für biomedizinische Forschungsprojekte der Onkologie, Kardiologie, Infektionsforschung, Transfusionsmedizin und Neurologie. Der Bürobereich im Erdgeschoss für Abteilungsleitung, Sekretariat und Aufenthalt ist von den Umkleiden/Schleusen vom Tierhaltungsbereich getrennt. Der Zugang der Tierpfleger in den Tierbereich erfolgt über eigens dafür vorgesehene Umkleiden mit Duschen. Da die Tierpfleger sich über längere Zeiträume in den Dunkelräumen aufhalten und teilweise Schwerstarbeit leisten, ist der Aufenthaltsraum gut belichtet und bietet Pausenqualität. Im Erdgeschoss sind weiterhin eine Spüle für Käfige, Lagerräume für Einstreu und Futter und ein Entsorgungsraum untergebracht. Die Einstreuversorgung erfolgt automatisch, um den Anteil der Staubpartikel zu minimieren. Die Ver- und Entsorgung der Bereiche mit Materialien erfolgt über einen Lastenaufzug. Durch die zentrale Lage des Aufzuges sind die Wege relativ kurz. Das Material wird auf gasdicht verschließbaren Transportwagen sicher transportiert.

Wirtschaftlichkeit - Materialität

Ebenso wie das Bestandsgebäude wurde auch der Neubau als Massivbau mit Wänden und Decken aus Stahlbeton errichtet. Das Technikgeschoss auf dem Dach besteht aus Stahlrahmen mit Verkleidung aus Sandwichelementen. Die Fassade des Neubaus - eine Verkleidung mit Verblendmauerwerk aus gelben Klinkern - passt zum vorhandenen Bestand und entspricht den Vorgaben des städtebaulichen Rahmenplanes für den Gesamtcampus.
Der kompakte Baukörper, seine günstigen Flächen- und Volumenkennwerte, ermöglichten einerseits einen wirtschaftlichen Bau und versprechen zukünftig einen wirtschaftlichen Betrieb. Mit einem nutzungsspezifisch optimierten Entwurfskonzept konnte eine hohe Funktionalität und Flexibilität in der Gebäudestruktur auf der vorgegebenen Baufläche gewährleistet werden.  Die Materialwahl insbesondere bei Fassaden und Oberflächen zielt auf eine hohe Nachhaltigkeit und Minimierung der Bewirtschaftungs- und Wartungskosten.

Barrierefreiheit

Das Gebäude wird ausschließlich als Arbeitsstätte genutzt und hat keine öffentlich zugänglichen Bereiche im Sinne des § 50 Abs. 2 der Landesbauordnung Mecklenburg-Vorpommerns. Der Neubau und das Bestandsgebäude sind ebenerdig erschlossen und in allen Ebenen über Aufzüge barrierefrei zu erreichen - einzige Ausnahme bildet der Tierpflegebereich im Erdgeschoss. Ein behindertengerechtes WC ist im Erdgeschoss des Bestandsgebäudes bereits vorhanden.

Nachhaltigkeit - Nachhaltiges Bauen

Grundlage der Planung sind bzw. waren die Nachhaltigkeitskriterien in Anlehnung an das Bewertungssystem für Nachhaltiges Bauen (BNB) für Laborgebäude. Dabei strebt das SBL Greifswald einen Erfüllungsgrad von 65 Prozent  an, der dem "Silber-Standard" entspricht.

Neubau Forschungscluster IIIa - Die wichtigsten Eckdaten

05.2012 Planungsauftrag zur Durchführung eines EU-weiten nichtoffenen Wettbewerbs
12.2012 europaweite Auslobung der Planungsleistungen für Gebäude, Tragwerk und Haustechnik
07.2013 Abschluss VOF-Verfahren mit Auswahl des Planungsteams (ARGE)
05.2014 Planungsauftrag zur Fortschreibung des Konzeptes zu einer ES-Bau
04.2016 Planungsauftrag für die Erstellung der EW-Bau
12.2016 Vorlage der EW-Bau
02.2017 Überarbeitung der EW-Bau
09.2019 Baubeginn
05.2022
Stand: November 2022

Neubau Forschungscluster IIIa - Planungsdaten

Bauherr Land Mecklenburg-Vorpommern, vertreten durch das Staatliche Bau- und Liegenschaftsamt Greifswald
genehmigte Gesamtkosten (ohne Ersteinrichtung) 14,3 Millionen Euro
 davon Baukosten 11,7 Millionen Euro
 davon Honorarkosten 2,6 Millionen Euro
Förderzeitraum 2014 bis 2022
Anteil förderfähige Gesamtkosten (EFRE-Förderung) 95 Prozent
Nutzfläche 790 m²
Nettoraumfläche 2.179 m²
Bruttogrundfläche 2.675 m²
Bruttorauminhalt 11.296 m³
Architekt tönis + schroeter + jansen freie architekten gmbh, Lübeck
Tragwerksplanung Ingenieurbüro für Tragwerksplanung Schüler GmbH, Neubrandenburg
Planung Heizung, Lüftung, Sanitär, Elektro ibm haustechnik manjah GmbH, Neubrandenburg
Laborplanung dr. heinekamp Labor- und Institutsplanung GmbH, Berlin
Landschaftsplanung / Ingenieurbauwerke Landschaftsarchitekturbüro Olaf Petters, Stralsund
Sachverständiger BNB / Thermische Bauphysik MNP-Ingenieure, Lübeck
beauftragte Firmen mit Sitz in Mecklenburg-Vorpommern 70 Prozent
bisher abgerechnete Gesamtbaukosten, einschl. 1. + 2. Nachtrag
Stand: November 2022

Lageplan Neubau Forschungscluster IIIa

17475 Greifswald, Fleischmannstraße 41
Logo des Europäischen Fonds für Regionale Entwicklung
Logo des Europäischen Fonds für Regionale Entwicklung
Investition in Wachstum und Beschäftigung
Förderprojekt:
Förderung der Forschungs- und Innovationskompetenzen an Hochschulen
Universitätsmedizin Greifswald - Neubau Forschungscluster IIIa
Dieses Projekt ist kofinanziert aus Mitteln des Landes Mecklenburg-Vorpommern und wird mit Beteiligung des Finanzministeriums Mecklenburg-Vorpommern umgesetzt

Weitere Artikel in dieser Rubrik