Universitätsmedizin Greifswald, Neubau von Forschungsflächen des Forschungsclusters III
11.05.2012 • Klinikbau
Für die medizinische Fakultät der Universität Greifswald entstand in ca. 18-monatiger Bauzeit von Juli 2010 bis Januar 2012 im Bereich Fleischmannstraße, zwischen vorhandenen alten Kliniken und dem neuen Klinikum, der Neubau des Forschungsclusters III als zentrales Forschungsgebäude. Verantwortlich für das Bauprojekt war der Geschäftsbereich Greifswald des landeseigenen Betriebs für Bau und Liegenschaften Mecklenburg-Vorpommern (BBL M-V).
Städtebauliches Konzept
Der Neubau wurde als dreigeschossiger Baukörper mit Flachdach errichtet und bildet für den östlich angrenzenden Haupteingangsbereich des neuen Klinikums mit seinem Vorplatz den räumlichen Abschluss. Spätere Erweiterungen können aufgrund seiner Gestaltung und Ausrichtung auf dem Grundstück ermöglicht werden, denn der durch die U-Form des Gebäudes entstandene Innenhof kann bei Bedarf geschlossen werden.
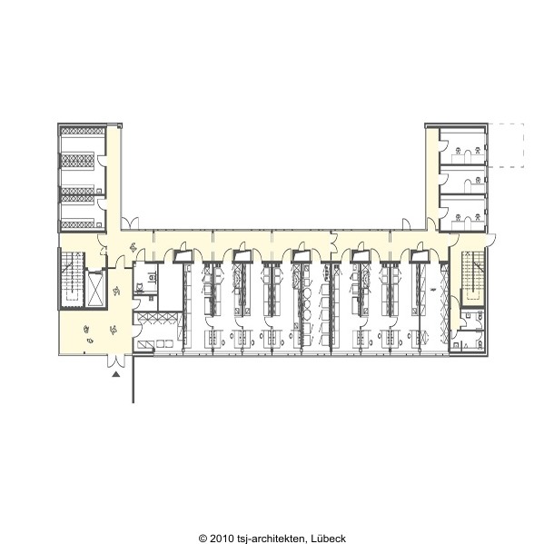
Bauwerksgeometrie, funktionale und technische Besonderheiten
Der langgestreckte dreigeschossige und U-förmige Neubau ist teilunterkellert und mit einem zusätzlichen Staffelgeschoss für die Technikzentrale ausgestattet. Die Gebäudeabmessungen betragen in der Länge ca. 53 m, in der Breite ca. 20 m und in der Höhe ca. 15,50 m. Der Nordflügel ist eingeschossig und unter diesem befinden sich in der Teilunterkellerung die Räume für die Haustechnik.
Die Erschließung des Gebäudes erfolgt über den Haupteingang an der Fleischmannstraße. Hier befindet sich eine kleine dreigeschossige Eingangshalle, die über alle Geschosse durch Galerien einsehbar ist. Ein weiterer Zugang wird über einen Nebeneingang an der Nordostfassade des Gebäudes ermöglicht.
Im dreigeschossigen Hauptbaukörper sind die Laborräume mit ihren spezifischen Neben- und Lagerräumen an der Südostfassade untergebracht. Dabei handelt es sich ausschließlich um S1-Labore im Sinne der Laborrichtlinien. Umkleideräume, Büros, Aufenthalts- und Besprechungsräume sind in den beiden Seitenflügeln angeordnet. Die Haupterschließungsflure verlaufen parallel zum Innenhof und sind großzügig verglast. Das Forschungsgebäude wurde als Stahlbetonbau mit Wänden und Deckenscheiben aus Stahlbeton sowie im Bereich der Glasfassaden mit stabilisierenden Stahlbetonstützen errichtet.
Das Technikgeschoss besteht aus Stahlrahmen mit Verkleidung aus Sandwichelementen.
Im dreigeschossigen Hauptbaukörper sind die Laborräume mit ihren spezifischen Neben- und Lagerräumen an der Südostfassade untergebracht. Dabei handelt es sich ausschließlich um S1-Labore im Sinne der Laborrichtlinien. Umkleideräume, Büros, Aufenthalts- und Besprechungsräume sind in den beiden Seitenflügeln angeordnet. Die Haupterschließungsflure verlaufen parallel zum Innenhof und sind großzügig verglast. Das Forschungsgebäude wurde als Stahlbetonbau mit Wänden und Deckenscheiben aus Stahlbeton sowie im Bereich der Glasfassaden mit stabilisierenden Stahlbetonstützen errichtet.
Das Technikgeschoss besteht aus Stahlrahmen mit Verkleidung aus Sandwichelementen.
Massives Material der Fassade in Form von Verblendmauerwerk hebt den kubischen Charakter des Gebäudes hervor. Der Bereich der Fassade im Innenhof entlang der Flure ist als Pfosten-Riegel-Konstruktion aus Aluminium und Glas ausgeführt.
Gestaltungskonzept
Das Prinzip der Gestaltung des Neubaus besteht darin, seine innere Funktion nach außen hin sichtbar zu machen. So sind im Hauptbaukörper hinter den Fensterbändern mit Massivbrüstungen die Laborräume zu finden und auf der Innenhofseite hinter der Glasfassade die Hauptflure. Die Technikzentrale als Staffelgeschoss reduziert sich nur auf die für diese Funktion notwendige Größe. Im 3. Obergeschoss wird über eine gebänderte Lochfassade auf der Innenhofseite wieder der Bezug zur Südwestfassade hergestellt. Gleichzeitig berücksichtigt dieser bewusste Bruch die später geplante Erweiterung, die zweigeschossig realisiert werden soll. Der Bereich des Haupteinganges mit seiner dreigeschossigen Eingangshalle ist über alle Geschosse verglast und erfährt so seine besondere Betonung.
Bei der Farbauswahl für die Fassade wurde ein gelber Klinker entsprechend den allgemeinen Festlegungen zu Fassadenmaterialien für den Campus bevorzugt. Im Gegensatz dazu setzen sich die dunkelgrau pulverbeschichteten Alu-Profile der Glasfassade und auch die Fensterprofile deutlich ab. Die auffällige Farbgestaltung der Flur- und Schachtwände wird über die Glasfassaden zum Innenhof auch von außen erlebbar und bildet so einen interessanten Blickfang auf den ansonsten eher schlichten Klinkerbau. An der Südost- und Südwestfassade sorgen außen liegende Alu-Raffstore-Anlagen in Weißaluminium für einen ausreichenden Sonnenschutz. Ziel des Gestaltungskonzeptes für den Neubau war es, im Einklang mit den Gestaltungsrichtlinien des Städtebaulichen Rahmenplanes, die schon vorhandenen neuen Konzepte zu übernehmen und weiterzuführen, um so die Kontinuität und Einheit des Gebäudeensembles auf dem Universitätscampus sicherzustellen.
Planungs- und Kostendaten Neubau Forschungscluster III
| Bauherr | Land Mecklenburg-Vorpommern, vertreten durch den BBL M-V Geschäftsbereich Hochschul- und Klinikbau |
|---|---|
| Gesamtbaukosten | 8 Millionen Euro |
| Baubeginn | 07.2010 |
| Grundsteinlegung | 16.08.2010 |
| Bauende | 01.2012 |
| Bruttogrundfläche BGF | 2.630 m² |
| Nutzfläche NF | 1.050 m² |
| beauftragter Architekt | tönis + schroeter + jansen Freie Architekten GmbH, Lübeck |
| Haustechnik | ARGE Ingenieurbüro Manja, Neubrandenburg, Energieplan GmbH Greifswald, Ingenieurbüro Dr. Heinekamp, Berlin |
Lageplan Forschungscluster III an der
17475 Greifswald, Fleischmannstraße 41