Zum Hauptinhalt springen
Logo des Europäischen Fonds für Regionale Entwicklung
Logo des Europäischen Fonds für Regionale Entwicklung
Rechenzentrum mit Rechnergebäude links und Seminar- und Verwaltungsgebäude rechts - Schutz vor Lärmbelästigung durch die Rückkühler auf dem Dach des Rechnergebäudes wird durch eine umlaufende vorgesetzte Lärmschutzfassade gewährleistet © 2021 SBL Greifswald

Nachhaltiges Rechenzentrum

09.04.2024 | Fertigstellung

Nachhaltiges Rechenzentrum

09.04.2024 | Fertigstellung

Universität Greifswald, Neubau Rechenzentrum

09.04.2024 • EFRE im SBL Greifswald
Das Land Mecklenburg-Vorpommern investiert mit Unterstützung der Europäischen Union weiter in die bauliche Entwicklung der Universität in Greifswald. Es entstand ein Rechenzentrum, bestehend aus zwei Gebäudekörpern, einem für die Rechentechnik und einem Seminar- und Verwaltungsgebäude. Verantwortlich für das ca. 12,4 Millionen Euro umfassende Bauprojekt war das Staatliche Bau- und Liegenschaftsamt (SBL) Greifswald.

Städtebauliches Konzept

Im Masterplan Gesamtcampus Sondergebiet "Entwicklungsgebiet Jahnstraße/ Rathenaustraße/ Fleischmannstraße/ Anklamer Straße/ Karl-Liebknecht-Ring" war bzw. ist für den Neubau des Universitätsrechenzentrums (URZ) eine Fläche zwischen der Zentralen Universitätsbibliothek im Westen und der BDH-Klinik im Osten vorgesehen. Die Gesamtliegenschaft des Entwicklungsgebietes ist dabei als "Sonstiges Sondergebiet/ Hochschulen für Lehre und Forschung" eingeordnet.

Lage auf dem Grundstück

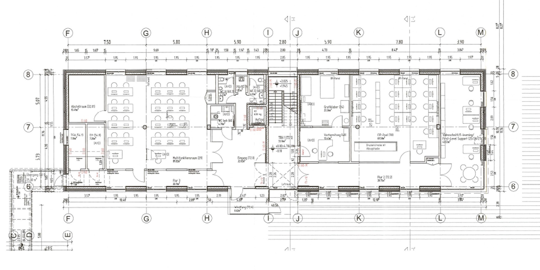
Um den städtebaulichen sowie auch den funktionalen Vorgaben am besten zu entsprechen, besteht der Neubau des URZ aus zwei Gebäudekörpern, dem eigentlichen Rechnergebäude und dem Seminar- und Verwaltungsgebäude. Das quadratische Rechnergebäude ist nördlich auf dem Grundstück angeordnet, südöstlich davon erstreckt sich das als Riegel in Nord-Süd-Richtung geplante und gebaute Seminar- und Verwaltungsgebäude. Form und Lage der Teilgebäude auf dem Grundstück bilden nach Südwesten eine kleinere, zur Rudolf-Petershagen-Allee hin offene Freifläche, über die das neue URZ für den Personenverkehr erschlossen wird. Das URZ wurde, um die verbleibende Grundstücksfläche bestmöglich nutzen zu können, an der östlichen Grundstücksgrenze, also als westliches Nachbargebäude zur BDH-Klinik platziert.

Planungskonzept - Integrales Rechner- und Gebäudekonzept

Im Rahmen des Vorbildcharakters von öffentlichen Bauten ist das entstandene Rechnergebäude ein "Leuchtturm für Nachhaltigkeit und Energieeffizienz". Um dieser Anforderung gerecht zu werden, musste ein integraler Ansatz zwischen technischer Gebäudeausrüstung und Informationstechnik angewendet werden. Durch das vom späteren Nutzer vordefinierte Rechnerkonzept konnte ein nachhaltiges, energetisch optimiertes Lüftungs- und Klimatisierungskonzept entwickelt und ausgeführt werden. Ziel war und ist es, ein modernes und effizientes Rechenzentrum zu entwerfen, zu bauen und zu betreiben. Herz des Konzeptes ist dabei die Klimatisierung der Informationstechnik im Rechnergebäude ohne Kältemaschinen. Zur Beheizung des Seminar- und Verwaltungsgebäudes wird die Abwärme aus dem Rechnergebäude genutzt. Der Betrieb des bestehenden alten Rechenzentrums wurde solange aufrecht erhalten, bis das neue URZ vollständig in Betrieb genommen wurde. Danach stand das alte Rechenzentrum zeitweilig dem Caspar-David-Friedrich-Institut der Universität zur Nachnutzung als Atelierflächen zur Verfügung. Im Sommer 2024 soll es abgerissen und die freiwerdenden Flächen für weitere geplante Neubauten der Universität hergerichtet werden.

Rechnergebäude

Im Rechnergebäude sind im Erdgeschoss alle primären und sekundären Anlagen und Funktionen untergebracht, die zum Betrieb der Server notwendig sind. Dazu gehören
  • informationstechnische Anlagen wie Server und Netzwerktechnik,
  • die Energieversorgung bestehend aus
    • Mittelspannungsstation,
    • Niederspannungshauptverteilungen,
    • Netzersatzanlage für kritische Systeme und unterbrechungsfreie Energieversorgung für kritische Systeme,
    • Kälteversorgung und
    • sonstige Technische Infrastruktur für das Rechenzentrum.
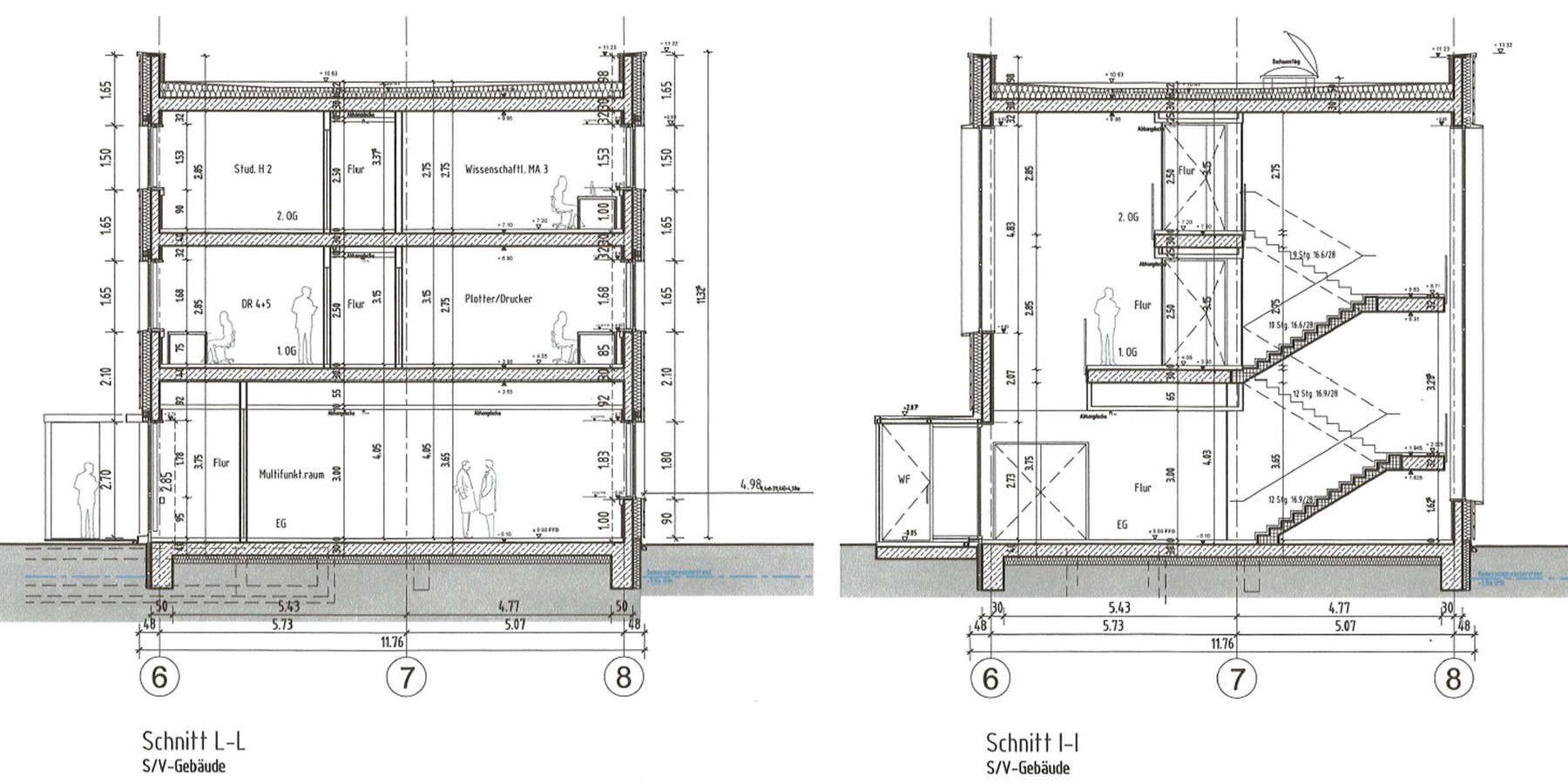
Die für den Betrieb erforderlichen Rückkühlwerke sind auf dem südlichen Teil der Dachfläche angeordnet. Ein geschosshoher Wandschutz schirmt diese Rückkühlwerke vierseitig sowohl optisch als auch akustisch nach außen ab. Dadurch erscheint das Rechnergebäude nach Süden hin zweigeschossig.

Seminar- und Verwaltungsgebäude

Das dreigeschossige Seminar- und Verwaltungsgebäude wird über den an der Westseite befindlichen Haupteingang, über den hier dem Gebäude vorgelagerten Vorplatz betreten. An den Haupteingang gliedern sich ein Foyer mit barrierefreier WC-Anlage, das Haupttreppenhaus mit Aufzug sowie, nach Norden entlang der Gebäudewestseite, ein Flur zur Erschließung von Multifunktionsraum und der haustechnischen Bereiche an.
Über diesen Flur ist auch der ebenerdige, wettergeschützte Übergang zum Rechnergebäude an der nordwestlichen Gebäudeecke zu erreichen.  Vom Eingangsbereich aus nach Süden werden, ebenfalls über einen Flur an der Westseite entlang, der CIP-Pool, das Grafiklabor und die Räume für Videoschnitt/E-Learning erschlossen. 
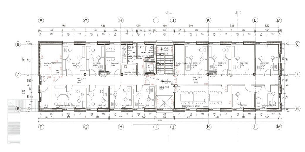
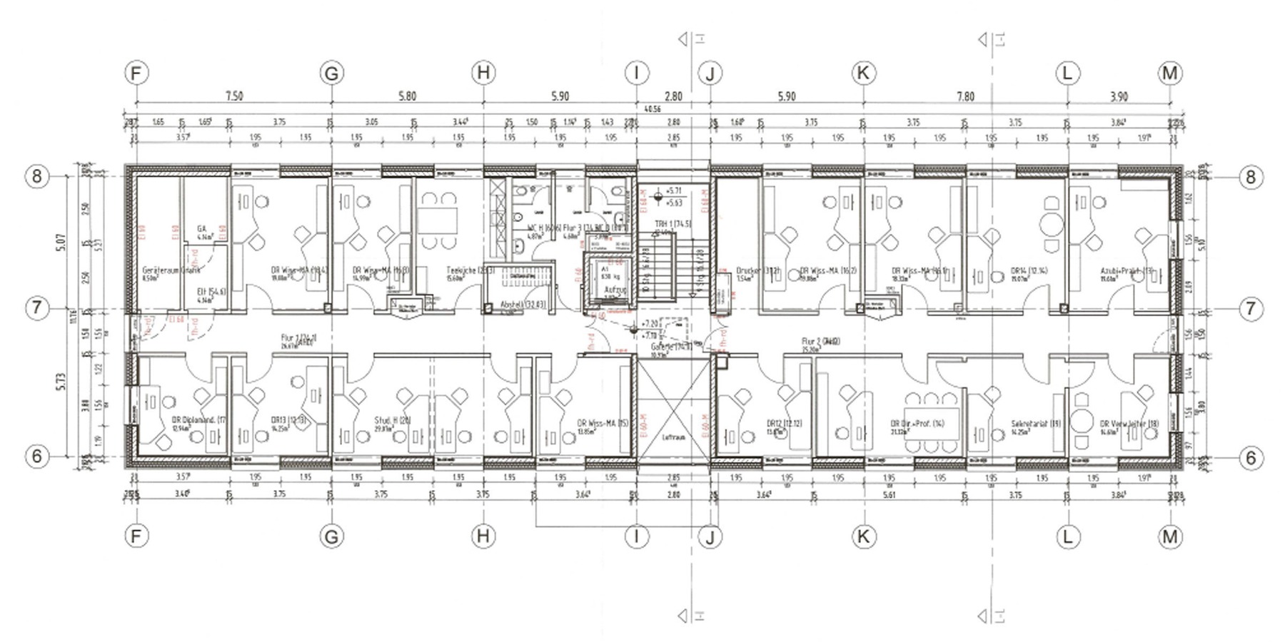
Im ersten und zweiten Obergeschoss befinden sind die Diensträume der Institutsmitarbeiter und zum Institutsbetrieb gehörende, weitere Räume sowie je Geschoss eine Teeküche und eine WC-Anlage. Zur verbesserten vertikalen Orientierung werden die Bereiche der Obergeschosse über dem Treppenhausflur im Erdgeschoss als offene Galerien ausgebildet.

Fassadengestaltung

Das Seminar- und Verwaltungsgebäude zeigt sich nach außen mit großen, bodengleichen Fensteröffnungen im Erdgeschoss, die im Eingangsbereich mit strukturierten Fertigteilen aus Beton und von einer Lisene gerahmt werden, die im Windfang zusammengeführt werden und enden. Der darüber liegende geschlossene zweigeschossige Bereich wirkt zurückhaltend und unaufdringlich. Die unterschiedliche Gestaltung steht im Zusammenhang mit der Nutzung: während im Erdgeschoss der Lehrbetrieb stattfindet, hier mit den Studierenden also die breitere Öffentlichkeit des Universitätsbetriebes Einlass hat, sind die beiden Obergeschosse im Wesentlichen den Lehrenden selbst und deren Forschung vorbehalten. Die transparenten Außenwandbereiche des Erdgeschosses sind größtenteils raumhoch verglast. Die geschlossenen Bereiche im hervorgehobenen Eingangsbereich sind mit Sichtbeton-Sandwich-Elementen versehen. Der Rest, sowie die beiden Obergeschosse des Gebäudes erhalten eine Lochfassade. Alle geschlossenen Bereiche wurden als hinterlüftete, vorgehängte Fassade aus Ziegeltonplatten ausgebildet. Zur Betonung des Eingangs und des Zentrums des Gebäudes mit seiner vertikalen Haupterschließung erhielt das Foyer und Haupttreppenhaus in den beiden Obergeschossen auf beiden Längsseiten eine durch einen breiten, vor die Gebäudeaußenwand vortretenden Blendrahmen eingefasste, zweigeschossige Verglasung. Alle Verglasungen sind in thermisch getrennten Aluminiumrahmen eingefasst und wurden, sofern sie Sonneneinstrahlung ausgesetzt sind, mit einem elektrisch betriebenen, außenliegenden Sonnenschutz auf schienengeführten, pulverbeschichteten Metall-Lamellen versehen. Die Computerräume im Erdgeschoss verfügen über eine innenliegende Verdunklung.
Die Wände des Rechnergebäudes wurden aus Sandwichpaneelen in Fertigteilbauweise vorgesehen. Die Außenseite ist als Sichtbeton, mit zwei sich abwechselnden, unterschiedlichen Oberflächen (glatt und Rillenstruktur) ausgeführt. Je nach Himmelsrichtung, Lage der Luftansaugflächen und Wandöffnungen erhalten die Betonflächen zusätzliche Gerüste zum Ranken und zur Begrünung. Die Betonplatten sind nur dort strukturiert, wo keine Begrünung angebracht ist. Die Rückkühlwerke auf dem Dach des neuen Rechenzentrums sind mittels Schallschutzpaneelen (Sandwich-Blechpaneele) eingefasst. Der Außenring erhielt zur architektonischen Aufwertung eine zusätzliche Verkleidung aus einfachem rautenförmigen Streckmetall. Die Farbe der Türen und Metallflächen ist in Abstimmung mit dem Nutzer in einem kälteren, unauffälligen Grau-/Silberton ausgebildet worden.

Barrierefreiheit

Gemäß der Landesbauordnung Mecklenburg-Vorpommerns sowie entsprechend den Vorgaben der DIN 18040 Teil 1 "Barrierefreies Bauen - öffentlich zugängliche Gebäude" ist das Gebäude als Einrichtung des Bildungswesens in sämtlichen Nutzungsbereichen barrierefrei geplant und ausgeführt.

Energetische Ziele und Nachhaltiges Bauen

Sämtliche Anforderungen der Energieeinsparverordnung (ENEV) wurden umgesetzt. Aus dem Bereich des Bewertungssystems Nachhaltiges Bauen (BNB) wurden folgende energetischen Ziele zur Umsetzung angestrebt und umgesetzt:
  • Nutzung der Abwärme aus dem Rechnergebäude für den Gebäudeteil Seminar- und Verwaltungsgebäude (100 Prozent Anteil aus Abwärme)
  • bei Überschuss an Abwärme Versorgung des benachbarten Forschungsgebäudes Center for Functional Genomics of Microbes (CFGM) mit dieser "Nahwärme" (Abwärme) über eine neu verlegte Erdleitung (25 Prozent Anteil aus Abwärme)
Grundlage der Planung und Ausführung bildeten die Nachhaltigkeitskriterien in Anlehnung an das BNB für Büro- und Verwaltungsgebäude. Dabei wurden für das Seminar- und Verwaltungsgebäude 65 Prozent Erfüllungsgrad und damit der Standard Silber angestrebt, 67,5 Prozent konnten erreicht werden. Dem Seminar- und Verwaltungsgebäude wurden das Zertifikat Standard Silber nach dem BNB sowie die dazugehörige Silber-Plakette verliehen.

Neubau Rechenzentrum - Die wichtigsten Eckdaten

05.2012 Planungsauftrag zur Durchführung eines EU-weiten nichtoffenen Wettbewerbs
12.2012 europaweite Auslobung der Planungsleistungen für Gebäude, Tragwerk und Haustechnik
12.2013 Abschluss VOF-Verfahren mit Auswahl des Planungsteams (ARGE)
03.2014 Planungsauftrag zur Fortschreibung des Konzeptes zu einer Entscheidungsunterlage-Bau
07.2015 Planungsauftrag für die Erstellung der Entwurfsunterlage-Bau (EW-Bau)
11.2015 Vorlage der EW-Bau
07.2017 Überarbeitung der EW-Bau zwecks Kosteneinsparung
08.2017 Baubeginn (vorbereitende Maßnahmen Verlegen RW/SW-Leitungen)
08.2020 Probebetrieb HPC-Racks
10.2020 Fertigstellung Seminar-/Verwaltungsgebäude
11.2020 Übergabe Seminar-/Verwaltungsgebäude
11.2021
Stand: 30. März 2022

Neubau Rechenzentrum - Planungsdaten

Bauherr Land Mecklenburg-Vorpommern, vertreten durch das Staatliche Bau- und Liegenschaftsamt Greifswald
genehmigte Gesamtkosten ca. 12,4 Millionen Euro (ohne Ersteinrichtung)
 davon Baukosten ca. 9,9 Millionen Euro
 davon Honorarkosten ca. 2,5 Millionen Euro
EU-Förderzeitraum 2014 bis 2020
Anteil förderfähige Gesamtkosten (EFRE) 35 Prozent gemäß Förderantrag
davon EFRE-Fördersumme gemäß Förderantrag
Nutzungsfläche NUF 1-6 gesamt 1.000 m²
Nettoraumfläche NRF gesamt 1.656 m²
Bruttogrundfläche BGF gesamt 1.998 m²
Bruttorauminhalt BRI gesamt 9.521 m³
davon Rechnergebäude
 Nutzungsfläche NUF 1-6 Rechnergebäude 216 m²
 Nettoraumfläche NRF Rechnergebäude 480 m²
 Bruttogrundfläche BGF Rechnergebäude 558 m²
 Bruttorauminhalt BRI Rechnergebäude 4.205 m³
davon Seminar-/ Verwaltungsgebäude
 Nutzungsfläche NUF 1-6 Seminar-/ Verwaltungsgebäude 784 m²
 Nettoraumfläche NRF Seminar-/ Verwaltungsgebäude 1.176 m²
 Bruttogrundfläche BGF Seminar-/ Verwaltungsgebäude 1.440 m²
 Bruttorauminhalt BRI Seminar-/ Verwaltungsgebäude 5.316 m³
beauftragte Architekten HWP Planungsgesellschaft mbH, Stuttgart
Tragwerksplanung GTB Berlin, Gesellschaft für Bauplanung mbH, Berlin
Planung Heizung, Lüftung, Sanitär, Elektro GTB Berlin, Gesellschaft für Bauplanung mbH, Berlin
Planung Rechentechnik dc-ce Berlin-Brandenburg GmbH, Teltow
Landschaftsplanung / Ingenieurbauwerke
Stand:3. Mai 2021

Standort Neubau Universitätsrechenzentrum (URZ)

17489 Greifswald, Felix-Hausdorff-Straße 12

Downloads

Logo des Europäischen Fonds für Regionale Entwicklung
Logo des Europäischen Fonds für Regionale Entwicklung
Investition in Wachstum und Beschäftigung
Förderprojekt:
Förderung der Forschungs- und Innovationskompetenzen an Hochschulen
Universität Greifswald - Neubau Rechenzentrum
Dieses Projekt ist kofinanziert aus Mitteln des Landes Mecklenburg-Vorpommern und wird mit Beteiligung des Finanzministeriums Mecklenburg-Vorpommern umgesetzt

Weitere Artikel in dieser Rubrik