Zum Hauptinhalt springen
Logo des Europäischen Fonds für Regionale Entwicklung
Logo des Europäischen Fonds für Regionale Entwicklung
Fenster, Stühle und Tische einem hell erleuchteten Raum © 2015 Christian Hoffmann (BBL-MV / sbl-mv / Finanzministerium M-V)

Neues Laborgebäude

03.06.2015 | Fertigstellung

Neues Laborgebäude

03.06.2015 | Fertigstellung

Botanik und Zoologie mit neuem Institutsgebäude

03.06.2015 • Neues Laborgebäude auf dem Campus Soldmannstraße
Das Land Mecklenburg-Vorpommern investiert mit Unterstützung der Europäischen Union weiter in die bauliche Entwicklung der Universität Greifswald. Entstanden ist ein Laborgebäude für die Institute Botanik und Zoologie. Verantwortlich für das 8,2 Millionen Euro umfassende Bauprojekt war der BBL M-V Geschäftsbereich Hochschul- und Klinikbau.
Mit dem Neubau der Universitätsmedizin Greifswald und der damit verbundenen Verlagerung medizinischer Einrichtungen aus der Innenstadt wurden große Liegenschaften in bzw. nahe der Altstadt frei gezogen, die in der Regel auch sehr wertvolle, denkmalgeschützte Bausubstanz umfassen und maßgeblich das Stadtbild prägen. Das Gelände der ehemaligen Kinderklinik in der Soldmannstraße ist davon ebenso betroffen.

Allgemeines bzw. bisherige Unterbringung

Der Gebäudekomplex Soldmannstraße wird derzeit für das Institut für Botanik und Landschaftsökologie und das Institut für Zoologie hergerichtet und soll auf lange Sicht als eigenständiger kleiner Campus durch diese nachgenutzt werden. Beide Institute nutzten bzw. nutzen bisher Gebäude, die sich in einem sehr schlechten, teilweise unzumutbaren Bauzustand befinden, so dass der Lehr- und Forschungsbetrieb unter erschwerten Bedingungen nur mit viel Mühe aufrecht erhalten werden konnte.

Standort und städtebauliches Konzept

Der Gebäudekomplex Soldmannstraße befindet sich in der Fetten-Vorstadt, südwestlich der Innenstadt, in der Nähe des Greifswalder Hauptbahnhofes. Die ehemaligen Klinikgebäude bilden derzeit ein in sich geschlossenes Ensemble aus Gebäuden, bei denen es sich um zahlreiche Einzeldenkmale handelt. Das gesamte Areal ist als Denkmalbereich eingestuft. Für die nun hier ansässigen Institute Botanik und Zoologie wurde ein Neubau realisiert, in dem die erforderlichen Laborflächen konzentriert untergebracht sind. Standort für dieses neue Laborgebäude ist der Bereich Soldmannstraße / Ecke Loitzer Straße. An dieser exponierten Lage spielte die städtebauliche Einordnung des Neubaus, unter Berücksichtigung des denkmalgeschützten Gebäudebestandes, natürlich eine besondere Rolle und wurde entsprechend umgesetzt.

Das Entwurfskonzept

"Der Entwurf wird vom Campusgedanken getragen. Das neue Gebäude schließt den Block an der Ecke Soldmannstraße/Loitzer Straße. An dieser städtebaulich prägnanten Stelle erhält die Universität eine neue Adresse, das Gelände der ehemaligen Kinderklinik wird als Universitätscampus wahrgenommen. Die städtebauliche Setzung berücksichtigt die benachbarten Gebäude in ihren Fluchten und Bauhöhen. Die L-Form des Gebäudes reagiert nach innen und schafft qualitätsvolle Außenräume, die Erschließung ist so angeordnet, dass sich unmittelbare Bezüge zu den benachbarten Hochschulbauten ergeben."  so Prof. Johannes Kister von kister scheithauer gross architekten und stadtplaner GmbH aus Köln (ksg).
Der dreigeschossige, nicht unterkellerte Bau ist zweiseitig erschlossen, wobei sich der Haupteingangsbereich nach Südosten zur Hofseite orientiert. Die innere, bauliche Erschließung wird über zwei notwendige Treppenhäuser jeweils an den südöstlichen Ecken der beiden Gebäudeflügel sowie über einen zentral im Innenbereich angeordneten Aufzug gewährleistet. Das Gebäude schließt mit einem Flachdach und einer darauf befindlichen, zum Teil als Staffelgeschoss zurückgesetzten Technikzentrale ab.

Die Funktionen

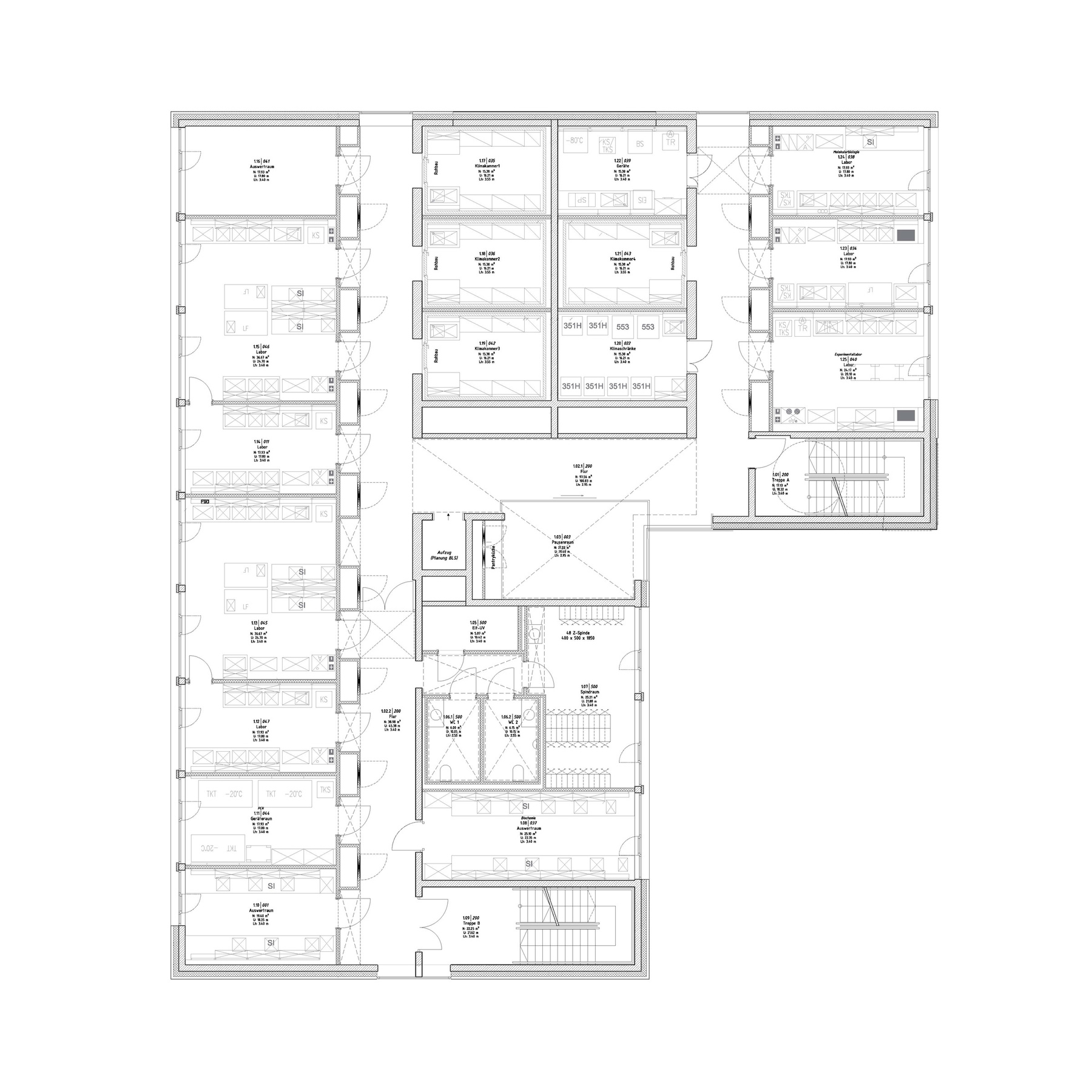
Das Laborgebäude ist klar strukturiert. Im Erdgeschoss sind im Nordflügel drei große Praktikumsräume mit den dazugehörigen Vorbereitungsräumen zu finden, die an einem relativ breiten Flur angegliedert sind. Im Südflügel wurden diverse Funktionsräume (z. B. Spülküche, Autoklavierraum, Erste Hilfe-Raum), sowie Technik- und Sozialräume geschaffen. Die Gliederung des 1. und 2. Obergeschosses ist identisch. Hier sind u. a. die Labore mit dazugehörigen Auswerteräumen, Geräteräume, Klimakammern, Klima- bzw. Kühlschränke, Aquarien sowie erforderliche Sozial- und Sanitärräume Nord- bzw. Südflügel angeordnet. Der anerkannte Raumbedarf umfasst insgesamt 1.081 m² Hauptnutzfläche und wurde mit Errichtung des Neubaus umgesetzt.

Konstruktion, Raster, Wirtschaftlichkeit

Der Gebäudekonstruktion liegt ein Raster für Labore von 1,15 m zugrunde. Die daraus resultierende Struktur ermöglichte, ein Maximum an Arbeitsfläche für Labore zu entwickeln. Die Tragkonstruktion besteht aus Stahlbeton, deren massive Bauteile durch die nächtliche Auskühlung als Klimapuffer aktiviert werden.
Nicht tragende Innenwände und Trennwände wurden als Leichtbauwände mit einer Beplankung aus Gipskarton hergestellt. Die Vorhangfassade ist mit innen liegender Dämmung ausgebildet. Dabei kommen als Außenhaut sowohl Putzflächen auf mineralischen Putzträgerplatten als auch Metallpaneele zum Einsatz. Beide Systeme wurden auf einer durchgängigen Unterkonstruktion aus Aluminium-Profilen montiert und sind komplett von hinten belüftet. Die teilweise zurückgesetzte Technikzentrale auf dem Dach wurde mit einer Konstruktion aus Metallrahmen verkleidet, die innen mit Gipskarton gedämmt ist.
Die Fassade des Gebäudes ist bis über die Dachkonstruktion der Technikzentrale hochgezogen und bildet hier deren Außenhaut. Auf dem Dach der Technikzentrale ist eine Photovoltaik-Anlage installiert.

"Die Konstruktion der Fenster vor den Laboren und Räumen zur Auswertung besteht aus zwei Teilen. Oberlichter versorgen die Labore mit Tageslicht und können für die nächtliche Auskühlung genutzt werden. Das Fenster darunter wird durch einen außenliegenden Sonnenschutz dem sommerlichen Wärmeschutz gerecht. Fensterflügel ermöglichen die natürliche Belüftung, außerdem kann die Reinigung der Fenster von innen erfolgen." so Prof. Johannes Kister (ksg).

Die äußere Gestaltung

"Die äußere Erscheinung des Gebäudes entwickelt sich aus der inneren Funktion. Unterschiedliche Nutzungen bilden sich in Form von differenzierten Fenstertypen ab. Flure und Treppenhäuser werden über großzügige Pfosten-Riegel-Konstruktionen belichtet, so entsteht Aufenthaltsqualität im Inneren für informelle Begegnungen und Kommunikation, nach außen hin wird der Alltag der Hochschule lebendig."  ergänzt Prof. Johannes Kister (ksg). Die Fassade besteht aus einer Kombination von geschliffenen Putzflächen in heller Farbgebung und eloxierten Metallpaneelen. Die Metallpaneele kommen an besonders markanten und ausgewählten Bereichen, wie z. B. den Zugängen des Gebäudes zum Einsatz und heben diese hervor.

Kunst am Bau

Ziel des Wettbewerbes für eine Kunst am Bau war, den durch den L-förmigen Neubau entstandenen, nach innen orientierten Hofbereich, der als hochwertiger Aufenthaltsbereich für Studierende und Wissenschaftler geplant war, raumgreifend künstlerisch zu gestalten. Dabei war z. B. die Thematisierung der am Campus ansässigen Forschungsgebiete ebenso möglich und wünschenswert, wie auch die Bezugnahme auf die umgebende Bebauung und die Schaffung einer neuen Identifikation im Komplex Soldmannstraße.
Die Wettbewerbsjury unter Vorsitz von Miro Zahra, freischaffende Künstlerin und Kuratorin, tagte am 21. April 2015 und empfahl die Arbeit des Wolgaster Künstlers Jürgen Kümmel, unter Beachtung einiger Empfehlungen / Auflagen zur Realisierung.

Der Siegerentwurf

Mit dem Siegerentwurf (ohne Titel) werden den zukünftigen Nutzern im Außenbereich drei plastische Zeichen in Form von aufrecht stehenden Skulpturen gesetzt und dem Innenhof so Gestalt gegeben. Die drei bestimmenden Holzelemente nehmen, im weitesten Sinne, Bezug auf die drei im Gebäude befindlichen Lehranstalten: Botanik, Zoologie, Sammlung.
Bei der Umsetzung der künstlerischen Idee kommt bewusst das organische Material Holz zur Anwendung, da dieses sowohl inhaltlich als auch im übertragenen Sinne zu beiden Instituten und der angegliederten Sammlung passt. Durchbrechungen und reliefhafte Ausarbeitungen im Holz, die beidseitig, in unterschiedlicher Weise und fragmentarischer Form angelegt sind, lassen freien Spielraum für individuelle Interpretationserlebnisse. Unterschiedliche, sich verändernde Lichteinfälle beleben den Platz und lassen ihn freundlicher wirken.
Der Innenhof wird einerseits durch die rhythmisch angeordneten Skulpturen gegliedert, andererseits öffnen sich Räume für Betrachtungsspielräume und innere Ruhe. Die Ergänzung von Sitzbänken schafft Möglichkeiten zum Verweilen, zur Kommunikation und erhöht die Aufenthaltsqualität auf dem Campus.

Die Platzierten

Zwei weitere Arbeiten wurden eingereicht und kamen auf die Plätze. Zum Einen der Entwurf "Biotopsimulator" des Berliner Künstlers Roland Fuhrmann, eine akustische Simulation der natürlichen biologischen Vielfalt an diesem Ort - und zum Anderen der Entwurf "lifebuoy" der ebenfalls in Berlin ansässigen Künstler Peter Lindenberg und Elisabeth Lesche, eine aus simplen Fischereiutensilien zusammengesetzte raumgreifende Reuse.

Die wichtigsten Eckdaten - Laborneubau Botanik und Zoologie

Planungsauftrag für Erstellung der Entwurfsunterlage (EW-Bau) 05.2010
europaweite Auslobung der Planungsleistungen für Gebäude / Architektur 06.2011
Abschluss VOF-Verfahren mit Auswahl des Planungsbüros 11.2011
Vorlage der EW-Bau 06.2012
Baubeginn (vorbereitende Maßnahmen, Abbrucharbeiten, Herrichten des Geländes) 02.2013
Fertigstellung Rohbau - Richtfest 02.2014
Fertigstellung - Übergabe an den Nutzer
Stand: Juni 2015

Planungsdaten - Laborneubau Botanik und Zoologie

Bauherr Land Mecklenburg-Vorpommern, vertreten durch den BBL M-V Geschäftsbereich Hochschul- und Klinikbau
Gesamtbaukosten 7,9 Millionen Euro
davon Baukosten 6,6 Millionen Euro
davon Honorarkosten 1,3 Millionen Euro
Anteil förderfähige Gesamtbaukosten 7,7 Millionen Euro (mit 45,5 Prozent Förderung aus dem Europäischen Fonds für regionale Entwicklung - EFRE)
davon EFRE-Fördersumme 3,5 Millionen Euro
Nutzfläche (1-6) 1.081 m²
Netto-Grundfläche 2.194 m²
Brutto-Grundfläche 2.737 m²
Bruttorauminhalt 10.754 m³
Architekt kister scheithauer gross Architekten und Stadtplaner GmbH, Leipzig
Tragwerksplanung AHW Ingenieure GmbH, Berlin
Planung Heizung, Lüftung, Sanitär ibm haustechnik manjah GmbH, Neubrandenburg
Elektroplanung BLS Energieplan GmbH, Berlin
Laborplanung Dr. Heinekamp Labor- und Institutsplanung, Berlin
Landschaftsplanung
Stand: Januar 2017

Digitaler Rundflug über dem Campus

Digitaler Rundflug über dem Campus Soldmannstraße im Herbst 2017. Blick auf den Neubau des Labor- und Seminargebäudes auf dem Campus Soldmannstraße im Herbst 2017. © 2017 Jörn Tirgrath, Röbel/Müritz

Laborneubau für die Institute Botanik und Zoologie

Neubau eines Laborgebäudes für die Institute für Botanik und Zoologie der Ernst-Moritz-Arndt-Universität Greifswald
Logo des Europäischen Fonds für Regionale Entwicklung
Logo des Europäischen Fonds für Regionale Entwicklung
Investitionen in Ihre Zukunft
Förderprojekt:
Förderung der Forschungskompetenzen an Hochschulen
Universität Greifswald - Neubau Laborgebäude, Institut für Botanik und Institut für Zoologie
Dieses Projekt ist kofinanziert aus Mitteln des Landes Mecklenburg-Vorpommern und wird mit Beteiligung des Finanzministeriums Mecklenburg-Vorpommern umgesetzt

Weitere Artikel in dieser Rubrik