Zum Hauptinhalt springen
Logo des Europäischen Fonds für Regionale Entwicklung
Logo des Europäischen Fonds für Regionale Entwicklung
Zur ausreichenden Belichtung der geplanten Büroräume im Dachgeschoss werden in der Domstraße 9 neue Gauben als schmale Stahlkonstruktion mit verglasten Seitenflächen vorgesehen © 2025 SBL Greifswald

Denkmalensemble wird für Uni-Verwaltung saniert

27.02.2025 | Bauausführung

Denkmalensemble wird für Uni-Verwaltung saniert

27.02.2025 | Bauausführung

Universität Greifswald, Grundsanierung der Gebäude Domstraße 9/10 für Teile der Zentralen Verwaltung

27.02.2025 • Hochschulbau
Seit dem Auszug bzw. Umzug des Institutes für Slawistik/Baltistik zum Campus Loefflerstraße im Jahre 2018 werden durch das Staatliche Bau- und Liegenschaftsamt (SBL) Greifswald umfangreiche Investitionen des Landes in den Erhalt, die Sanierung, Modernisierung und Umnutzung des bedeutenden Denkmalensembles Domstraße 9/10 umgesetzt. Voraussichtlich bis Mai 2025, nach ca. 2½-jähriger Bauzeit, sollen die Arbeiten abgeschlossen und das Gebäude an die Verwaltung der Universität als neuen Nachnutzer übergeben werden.

Allgemeines

Die beiden im 18. Jahrhundert errichteten, direkt aneinander angrenzenden Häuser Domstraße 9 und 10 wurden im Laufe der Zeit bereits mehrfach zum Zwecke der universitären Nutzung um- und ausgebaut. In den 1960er Jahren wurden beide Gebäude durch Wanddurchbrüche miteinander verbunden und bilden seitdem eine Nutzungseinheit. Bestehende Niveauunterschiede wurden durch Treppenanlagen überwunden. Eine barrierefreie Erschließung war nicht vorhanden. Der Außenputz beider Gebäude stammte von einer DDR-zeitlichen Baumaßnahme, vermutlich aus den 1970er, evtl. auch 1960er Jahren. In den 1990er Jahren wurden alle Fenster sowie die Dacheindeckung mit Biberschwanz-Dachsteinen komplett erneuert. Diese neuzeitlichen Holzfenster orientieren sich durch Fensterteilungen und Sprossen am historischen Bestand und bleiben erhalten.  Bis zum Leerzug wurden die Gebäude als Institut für Slawistik/Baltistik der Universität Greifswald genutzt.

Standort - Historie - Baukonstruktion

Die Gebäude Domstraße 9/10 befinden sich in der historischen Altstadt von Greifswald, in unmittelbarer Nachbarschaft zum Campus Innenstadt mit dem Universitätshauptgebäude und dem Auditorium Maximum.  Beide Gebäude sind Einzeldenkmale und wurden im 18. Jahrhundert als Mauerwerksbauten mit homogenem Ziegelmauerwerk errichtet. Die verputzten Außenwände weisen an der Vorderfassade einfache Strukturierungen durch rückspringende schlichte Putzspiegel unterhalb der Obergeschossfenster auf. Die Fenster der Domstraße 9 sind auf der Vorder-/Straßenseite mit profilierten Putzfaschen gefasst, der Eingangsbereich ist durch Gesims, Lisenen und Stuckornament bekrönt.
Das Haus Domstraße 9 wurde 1747/1748 errichtet und ehemals als Pfarrhaus von St. Jakobi genutzt. Es handelt sich um ein zweigeschossiges, achtachsiges Traufenhaus aus verputztem Backstein, mit ausgebautem Dachgeschoss und Teilunterkellerung. Das Satteldach ist als Pfettendachkonstruktion ausgebildet und mit Biberschwanzziegeln gedeckt. Ein Haupttreppenhaus führt vom Erdgeschoss bis in das Dachgeschoss. Die beiden Zugänge, auf der Straßen- sowie Hofseite, erfolgen über zwei kleine äußere Treppenanlagen.
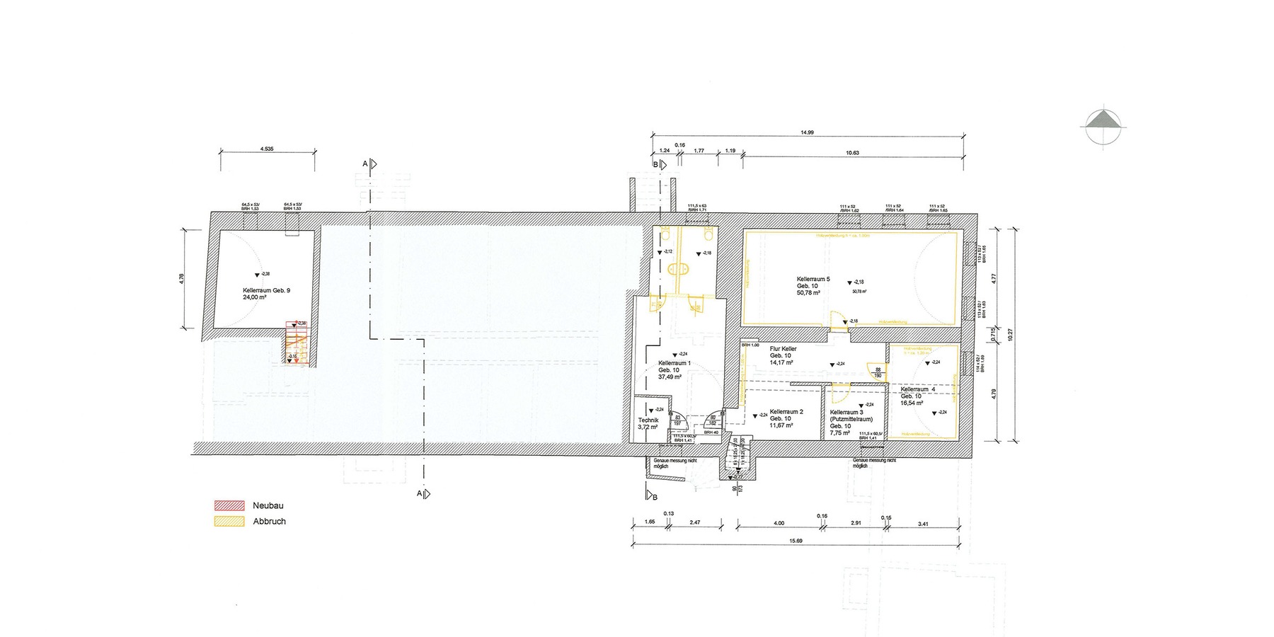
Das Haus Domstraße 10 wurde in den 1780er Jahren (vermutlich 1785) errichtet und ehemals als Professorenwohnhaus genutzt. Es ist ein zweigeschossiger, siebenachsiger verputzter Backsteinbau mit Mansardwalmdach und einem hofseitigem östlichen Seitenflügel mit Satteldach. Der Seitenflügel ist ebenfalls zweigeschossig und gehört zum ursprünglichen Bestand. Das Haupthaus verfügt neben den beiden Hauptgeschossen über eine vollständige Unterkellerung in Form von drei tonnengewölbten Räumen sowie über ein bisher ausgebautes 1. Dachgeschoss und ein nicht ausgebautes 2. Dachgeschoss. Der zum ursprünglichen Bestand gehörige, zweigeschossige Seitenflügel ist nicht unterkellert, das Dachgeschoss ist nicht ausgebaut. Ein Haupttreppenhaus führt vom Erdgeschoss bis in das Dachgeschoss. Der Zugang erfolgt über den straßenseitigen Haupteingang mit Treppenanlage und spätbarocker Haustür sowie über einen hofseitigen Eingang ebenfalls mit Treppenanlage.

Entwurfskonzept - Denkmalschutz

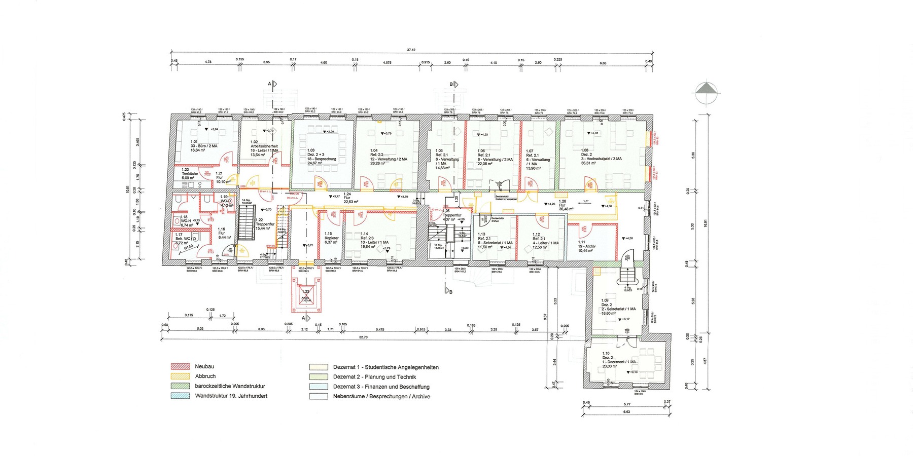
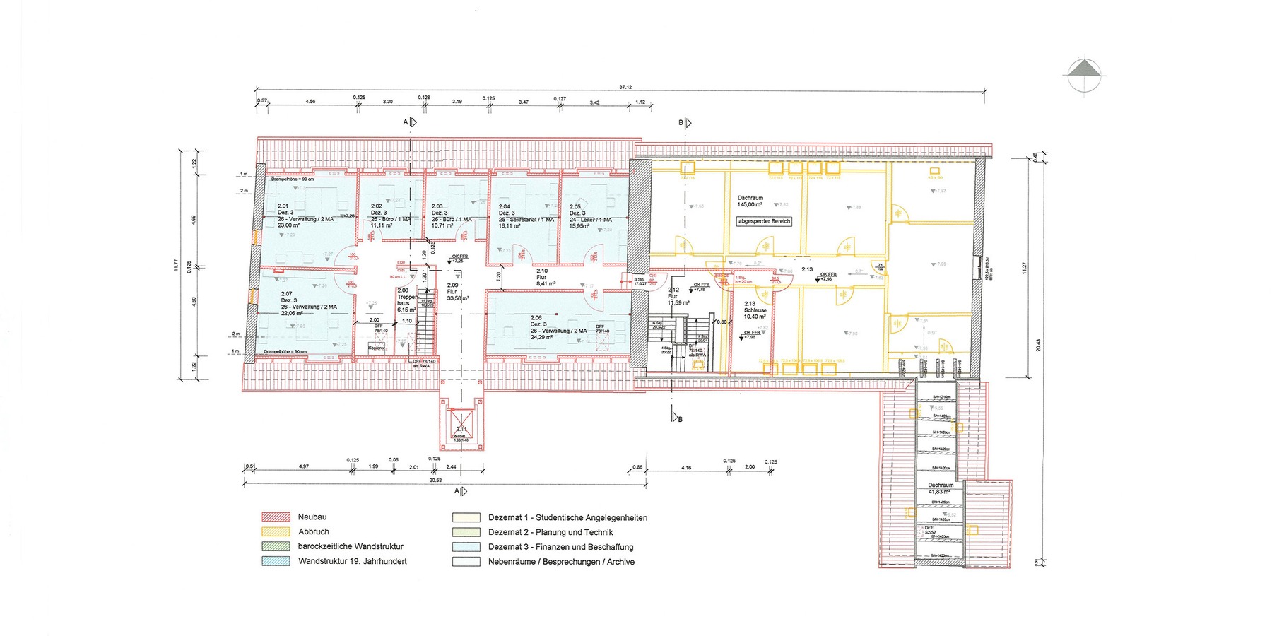
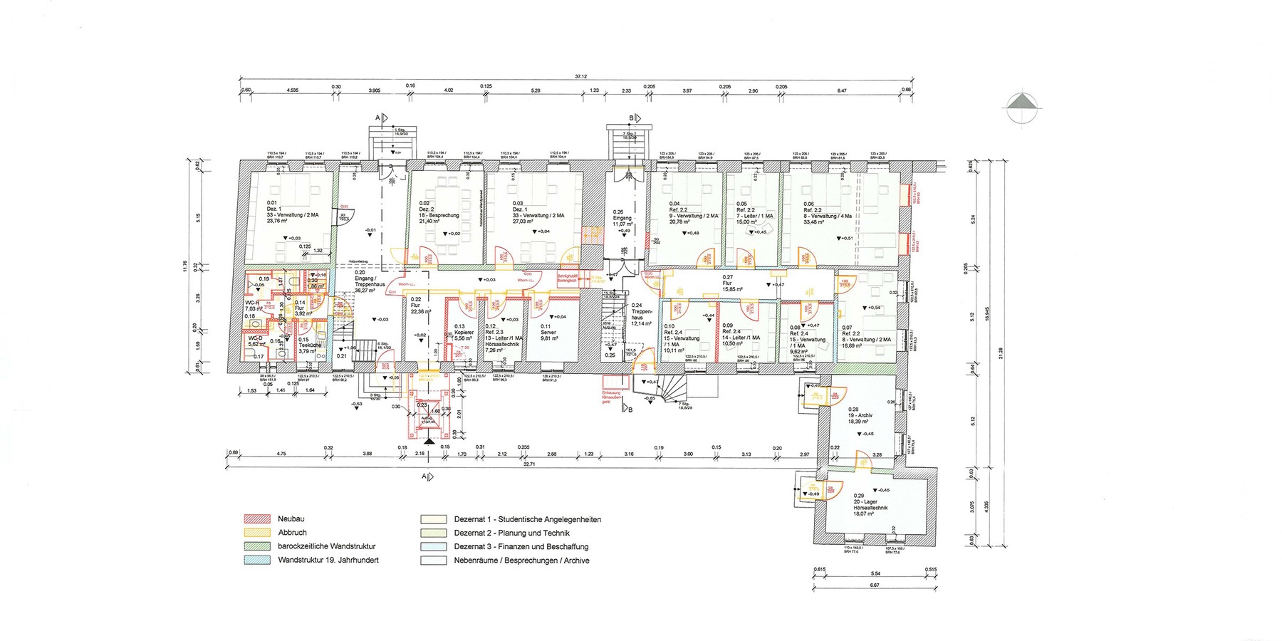
Die Gebäude stehen unter Denkmalschutz. Alle Instandsetzungs- und Sanierungsarbeiten erfolgen sowohl planerisch als auch in der Bauausführung unter Berücksichtigung der Prämisse einer weitestgehenden Erhaltung der bauzeitlichen barocken Konstruktionen, der historischen Grundrissteilung und der Ausstattungselemente aus dem 18. und 19. Jahrhundert. Grundlage der Planung und Ausführung bilden dabei ein bauhistorisches Gutachten sowie im Vorfeld durchgeführte umfangreiche restauratorische u.a. baukonstruktive Untersuchungen. Die vorhandene historische Raumsituation wird an den neuen funktionellen Bedarf angepasst, wobei der Umfang des Raumprogrammes die Nutzung mindestens eines Dachgeschosses weiterhin erfordert. Nach der Sanierung wird das Gebäudeensemble Domstraße 9/10 verschiedenen Dezernaten der Zentralen Verwaltung der Universität zur Verfügung stehen. Neben modernen, hellen Büroräumen werden auch gemeinsam genutzte Räume für Besprechungen, Teeküchen, Kopierer und Server, Archiv, Lager gemäß Raumbedarf und natürlich erforderliche Sanitärräume berücksichtigt.

Bauausführung - konstruktive und bautechnische Maßnahmen und Besonderheiten

Um neben dem Denkmalschutz auch alle Anforderungen eines zeitgemäßen Verwaltungsgebäudes z.B. an Funktionalität, moderner technischer Ausstattung, Arbeitsschutz, Brandschutz, Barrierefreiheit … umzusetzen, war/ist eine umfassende Grundsanierung erforderlich. Dabei bleibt der Gebäudekomplex in seiner ursprünglichen Kubatur und Gestaltung erhalten.  Beispielhaft zu nennen sind hier u.a. folgende durchgeführte bzw. noch durchzuführende Maßnahmen:
  • Schadstoffsanierung und -entsorgung (z.B. Dämmungen, Teerpappen, Fußböden …)
  • Gebäudetrockenlegung, Herstellung horizontaler und vertikaler Bauwerksabdichtungen durch Injektage und Dichtungsschlämme, vollständige Entfernung des salzbelasteten Putzes an Wänden und Gewölben im Kellergeschoss
  • Komplettabbruch der schadstoffbelasteten Dachkonstruktion Domstr. 9 und Erneuerung für die erforderliche Dachgeschossnutzung, Einbau neuer Flachdachgauben und Dachflächenfenster zur Gewährleistung der ausrechenden Belichtung der Büroräume
  • vollständige Reinigung und konstruktive Reparatur der Dachkonstruktion Domstr. 10 – Erhalt wegen besonderer Mansarddachkonstruktion, ohne weiteren Ausbau, aber Abschottung wegen Schadstoffbelastung
  • Gewährleistung einer barrierefreien Erschließung über alle Geschosse in der Domstraße 9 durch Schaffung eines kontrastreichen Orientierungssystems und den Anbau eines rollstuhlgerechten Außenaufzuges mit taktilen und akustischen Informationen an der Hofseite des Gebäudes
  • Herstellung / Neuorganisation / Neueinbau von WC-Anlagen im Erd- und Obergeschoss der Domstraße 9, einschließlich Behinderten-WC
  • Rollstuhlgerechte Ausführung aller neuen Innentüren mit einer Mindestbreite von 90 cm i.L.
  • Erhalt bauhistorisch wertvoller Innentüren, Aufarbeitung und Einpassung in neue Raumnutzung
  • Einbau neuer erforderlicher, nichttragender Trennwände in reversibler Bauweise im Sinne des Denkmalschutzes als Trockenbaumontagewände
  • Demontage, Aufarbeitung, Beschichtung historischer Holzpaneele in der Domstraße 9 und Wiedereinbau an geeigneter Stelle (Besprechungsraum)
  • Erhalt und Aufarbeitung der vorhandenen Holzaußenfenster, teilweise Erneuerung bei Bedarf in Anpassung an historischen Befund
  • Aufarbeitung und Neubeschichtung der historischen straßenseitigen Außentüren unter Berücksichtigung restauratorischer Gesichtspunkte
  • Reinigung und Reparatur des vorhandenen Außenputzes, Ergänzung von Fehlstellen, Überarbeitung von Schmuckelementen, Faschen, Gesimsen … entsprechend Bestand, monochromer Farbanstrich nach denkmalpflegerischem Farbkonzept
  • Kompletterneuerung Sockelputz auf neuer Dichtungsschlämme
  • Aufarbeitung der historischen, mehrläufigen Treppen vom EG bis DG
  • Reinigung, Aufarbeitung und Reparatur der Außentreppen
  • teilweise Aufarbeitung, Ausbesserung, Ergänzung von Fehlstellen bzw. Erneuerungen an den historischen Dielenbelägen
  • teilweiser Ersatz bzw. Sanierung von Deckenbalken / Balkenköpfen inkl. Mauerwerksschwellen und Maueranker; Erneuerung und Anpassung Blindboden und Einschub in den Holzbalkendecken
  • unterseitige feuerhemmende und nichtbrennbare Bekleidung aller Holzbalkendecken zur Gewährleistung des Brandschutzes
  • Ausbildung der Treppenhäuser als Fluchttreppenhäuser durch brandschutztechnische Abtrennung mit elementierten Metall-Glas-Konstruktionen in erforderlicher Brandschutz-Klassifizierung
  • Erneuerung Dacheindeckung als Biberschwanzziegel-Kronendeckung in naturrot
  • Schutz aller verbleibenden historischen Bauteile vor Beschädigungen während der Sanierungsarbeiten durch Einhausungen

Gebäudetechnik

In beiden Gebäuden – Domstraße 9 und 10 – werden bzw. wurden nach Rückbau der alten Anlagen die haustechnischen Anlagen und Installationen komplett erneuert bzw. neu vorgesehen:
  • Erneuerung der Hausanschlussstation für den bestehenden Fernwärmeanschluss
  • Erneuerung Elektro- und Fernmeldeinstallation, Beleuchtung, Blitzschutz- und Erdungsanlagen
  • Erneuerung Sanitärinstallationen, Wasser- und Abwasseranlagen
  • Erneuerung des Wärmeverteilnetzes (Rohrsystem und Heizkörper)
  • Neuausstattung der Gebäude mit Einbruchmeldeanlage und Brandmeldeanlage
  • Neuausstattung der Gebäude mit Gebäude- und Anlagenautomation für einen wirtschaftlichen Gebäudebetrieb

Die wichtigsten Eckdaten - Grundsanierung Domstraße 9/10 für Teile der Verwaltung der Universität Greifswald

03.2021 Vorlage Bauunterlage
07.2021 Anerkennung Bauunterlage
11.2022 Baubeginn
05.2025
Stand: Februar 2025

Planungsdaten - Grundsanierung Domstraße 9/10 für Teile der Verwaltung der Universität Greifswald

Bauherr Land Mecklenburg-Vorpommern, vertreten durch das Staatliche Bau- und Liegenschaftsamt Greifswald
Gesamtbaukosten (inkl. 1. + 2. Nachtrag) ca. 5,9 Mio. Euro
davon Baukosten ca. 4,9 Mio. Euro
davon Honorarkosten ca. 1 Mio. Euro
Nutzungsfläche NUF 1.021 m²
Netto-Raumfläche NRF 1.354 m²
Brutto-Grundfläche BGF 1.747 m²
Bruttorauminhalt BRI 5.906 m³
Gebäudeplanung Kottke Architekten, Stralsund
Tragwerksplanung Ingenieurgesellschaft Mehling-Löwe-Schipper GmbH, Greifswald
Planung TGA Haustechnik Ingenieurbüro Röhrich und Partner, Warnemünde
Restauratorische Untersuchung Dipl.-Restaurator Hans-Henning Bär, Sundhagen
Bauhistorische Voruntersuchung (2019)
Der überwiegende Teil der Bauleistungen (ca. 75 %) sowie der Planungsleistungen (ca. 95 %) wurde von Firmen bzw. Büros aus Mecklenburg-Vorpommern ausgeführt.

Standort Domstraße 9/10

17489 Greifswald, Domstraße 9/10
Logo des Europäischen Fonds für Regionale Entwicklung
Logo des Europäischen Fonds für Regionale Entwicklung
Investition in Wachstum und Beschäftigung
Förderprojekt:
Förderung der Forschungs- und Innovationskompetenzen an Hochschulen
Dieses Projekt soll im Rahmen des EFRE Programms 2021 bis 2027 des Landes Mecklenburg-Vorpommern aus Mitteln des Europäischen Fonds für regionale Entwicklung der Europäischen Union gefördert werden.
Dieses Projekt ist kofinanziert aus Mitteln des Landes Mecklenburg-Vorpommern und wird mit Beteiligung des Finanzministeriums Mecklenburg-Vorpommern umgesetzt

Weitere Artikel in dieser Rubrik